Haga una consulta sobre esta propiedad
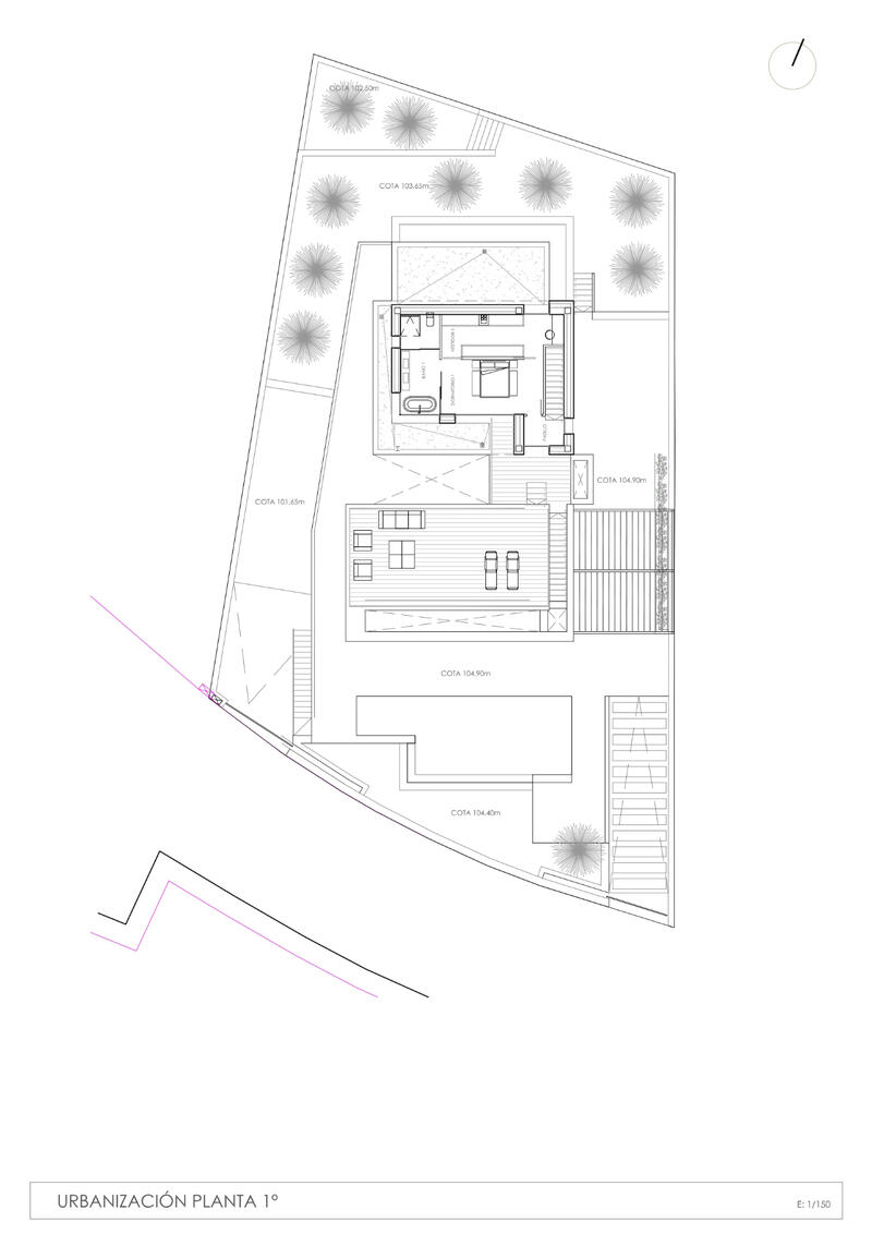
Distribución: La villa está distribuida en tres plantas, pensadas para maximizar el confort y el estilo de vida mediterráneo.
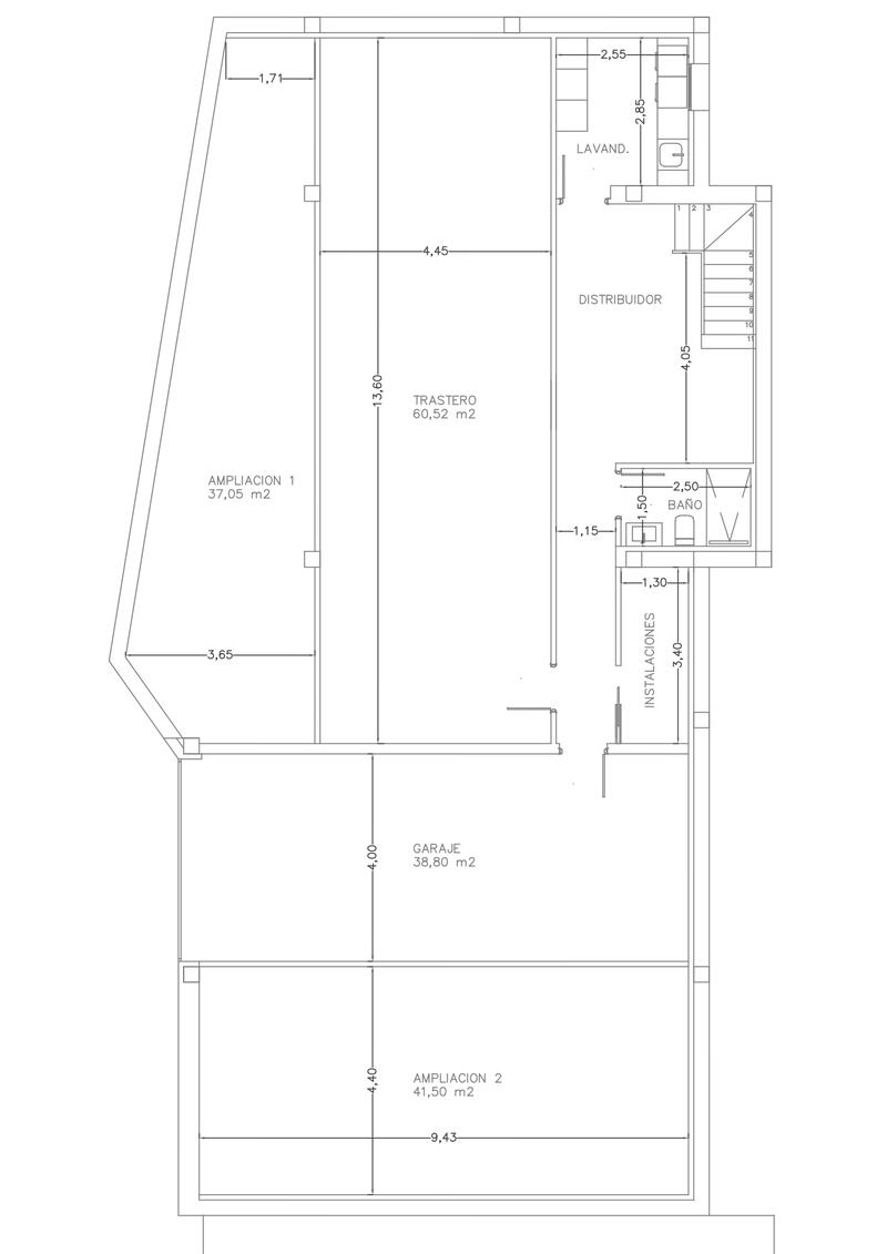
En la planta baja, se encuentra la zona de día, con un amplio salón-comedor lleno de luz natural y una moderna cocina abierta con isla central, perfecta para disfrutar con amigos y familiares. Además, en este nivel se ubican tres dormitorios, todos con baño en suite, garantizando privacidad y comodidad. También hay un aseo de cortesía.En la primera planta, se encuentra la majestuosa suite principal, que incluye un vestidor, un baño de lujo y acceso a una impresionante terraza panorámica con vistas al mar y al entorno natural.En el sótano, que abarca 145.5 m², encontrarás un garaje con capacidad para dos vehículos, una lavandería, un baño y una estancia adicional con infinitas posibilidades: sala de cine, sauna, gimnasio o incluso un apartamento de invitados (espacio diafano).Equipamiento: La villa estará equipada con calefacción por suelo radiante, aire acondicionado, doble garaje y una piscina infinita, ideal para relajarse y disfrutar del clima mediterráneo.
Esta propiedad única es perfecta para quienes desean disfrutar del clima mediterráneo durante todo el año en compañía de familiares y amigos.
caracteristicas de la propiedad
- 4 dormitorios
- 5 baños
- 385m² Tamaño de construcción
- 809m² Tamaño de la parcela
- Piscina
- Garden
- BBQ
- Parking - Garage
- Storage / Trastero
- Air Conditioning Hot Cold
- Bbq
- Construction Year: 2026
- Covered Terrace
- Doble Glazing
- Fenced Plot
- Garage
- Garden
- Good Communications
- Heating Radiating Floor
- Internet
- Laundry
- Near The Beach
- Near The Town Center
- Open Terrace
- Outdoor Shower
- Parking
- Phone
- Satelite Tv
- Satelite Tv
- Security Door
- Storage Room
Desglose de costos
* El impuesto de transferencia se basa en el valor de venta o el valor catastral, el que sea más alto.
** La información anterior se muestra solo como guía.
Calculadora de hipoteca
Resultado hipotecario
* La información anterior es proporcionada por The MHI Group y se muestra solo como una guía. Las circunstancias individuales podrían cambiar la tasa que ofrecemos para una hipoteca. Haga clic en el enlace a continuación para obtener una cotización personalizada.
Similar Properties
Noticias inmobiliarias de España en Spain Property Portal.com
In Spain, two primary taxes are associated with property purchases: IVA (Value Added Tax) and ITP (Property Transfer Tax). IVA, typically applicable to new constructions, stands at 10% of the property's value. On the other hand, ITP, levied on resale properties, varies between regions but generally ranges from 6% to 10%.
Spain Property Portal is an online platform that has revolutionized the way people buy and sell real estate in Spain.
In Spain, mortgages, known as "hipotecas," are common, and the market has seen significant growth and evolution.























