Haga una consulta sobre esta propiedad
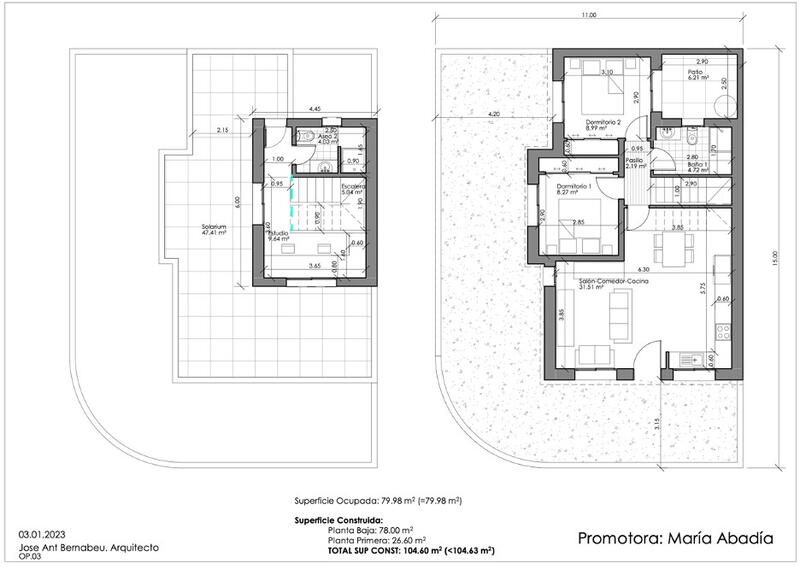
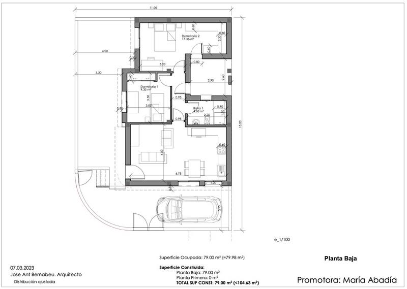
Descubra esta parcela urbana de 160 m² en una ubicación privilegiada en el encantador pueblo de Daya Nueva , en el corazón de la Vega Baja de Alicante. Esta parcela, totalmente urbanizada, cuenta con permiso de construcción para una villa independiente de una sola planta , con la opción de modificar el proyecto para construir una vivienda de dos plantas , sujeto a la aprobación municipal.
Ubicada a poca distancia de todos los servicios , incluidas tiendas, bares, restaurantes y la plaza del pueblo, esta parcela ofrece una oportunidad ideal para construir la casa de sus sueños en un entorno español tranquilo y al mismo tiempo permanecer cerca de todo lo que necesita.
Daya Nueva es un pueblo tradicional español que se ha vuelto cada vez más popular entre residentes y turistas gracias a su ambiente tranquilo, su comunidad amigable y sus excelentes conexiones por carretera. Rodeado de naranjos y limoneros, ofrece una muestra de la auténtica vida mediterránea, a la vez que se encuentra cerca de la costa y de las comodidades de la ciudad.
Detalles clave de la ubicación:
A sólo 13 km (aprox. 15 minutos) de las impresionantes playas de Guardamar del Segura A sólo 8 km del popular campo de golf La Marquesa en Ciudad Quesada El Aeropuerto Internacional de Alicante está a sólo 40 km (aprox. 35 minutos) Rápido acceso a la AP-7 y N-332 para viajar fácilmente por la Costa Blanca
Ya sea que esté buscando construir una residencia permanente , una casa de vacaciones o una propiedad de inversión inteligente , esta parcela ofrece flexibilidad y un gran potencial en uno de los secretos mejor guardados de la Costa Blanca.
Contáctenos hoy para obtener más información o para concertar una visita a la parcela y al área local.
caracteristicas de la propiedad
- 0 dormitorios
- 0 baños
- 160m² Tamaño de la parcela
Desglose de costos
* El impuesto de transferencia se basa en el valor de venta o el valor catastral, el que sea más alto.
** La información anterior se muestra solo como guía.
Calculadora de hipoteca
Resultado hipotecario
* La información anterior es proporcionada por The MHI Group y se muestra solo como una guía. Las circunstancias individuales podrían cambiar la tasa que ofrecemos para una hipoteca. Haga clic en el enlace a continuación para obtener una cotización personalizada.
Similar Properties
Noticias inmobiliarias de España en Spain Property Portal.com
In Spain, two primary taxes are associated with property purchases: IVA (Value Added Tax) and ITP (Property Transfer Tax). IVA, typically applicable to new constructions, stands at 10% of the property's value. On the other hand, ITP, levied on resale properties, varies between regions but generally ranges from 6% to 10%.
Spain Property Portal is an online platform that has revolutionized the way people buy and sell real estate in Spain.
In Spain, mortgages, known as "hipotecas," are common, and the market has seen significant growth and evolution.














