Haga una consulta sobre esta propiedad
Esta parcela orientada al sur tiene unas vistas magníficas del campo y las montañas de Mijas. La parcela es ligeramente pendiente, con zonas verdes al frente y al costado.
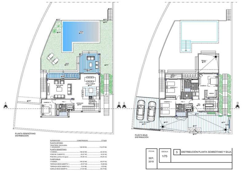
El proyecto es para un chalet moderno de 2 plantas de 218m² más un sótano de 129m², con 4 dormitorios, 3 baños, y una piscina. El comprador tendrá la opción de personalizar la casa a su gusto. Los planos están disponibles; contáctenos para más información.
caracteristicas de la propiedad
- 0 dormitorios
- 0 baños
- 676m² Tamaño de la parcela
Desglose de costos
* El impuesto de transferencia se basa en el valor de venta o el valor catastral, el que sea más alto.
** La información anterior se muestra solo como guía.
Calculadora de hipoteca
Resultado hipotecario
* La información anterior es proporcionada por The MHI Group y se muestra solo como una guía. Las circunstancias individuales podrían cambiar la tasa que ofrecemos para una hipoteca. Haga clic en el enlace a continuación para obtener una cotización personalizada.
Similar Properties
Noticias inmobiliarias de España en Spain Property Portal.com
In Spain, two primary taxes are associated with property purchases: IVA (Value Added Tax) and ITP (Property Transfer Tax). IVA, typically applicable to new constructions, stands at 10% of the property's value. On the other hand, ITP, levied on resale properties, varies between regions but generally ranges from 6% to 10%.
Spain Property Portal is an online platform that has revolutionized the way people buy and sell real estate in Spain.
In Spain, mortgages, known as "hipotecas," are common, and the market has seen significant growth and evolution.















