Stellen Sie eine Anfrage zu dieser Immobilie
Exklusive Neubauvilla in einer erstklassigen Wohngegend von Calpe
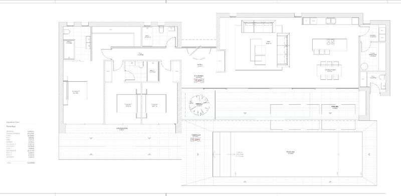
Diese neu gebaute Villa befindet sich in einer der begehrtestem Wohngegenden von Calpe und bietet die perfekte Kombination aus modernem Komfort, Privatsphäre und hervorragender Anbindung an das Stadtzentrum und die Strände. Nur 900 Meter von der Sandküste und wenige Minuten von allen wichtigen Dienstleistungen entfernt, liegt diese Immobilie am Rande der Stadt und bietet eine ruhige und dennoch sichere Umgebung.
Ebenerdiges Wohnen mit offenem Grundriss
Die Villa ist auf Praktikabilität und Komfort ausgelegt und erstreckt sich über eine Etage, wodurch sie sich ideal für Familien und Ruheständler eignet. Der Eingangsbereich führt in einen hellen Flur, der sich zu einem geräumigen offenen Wohn- und Essbereich mit einer modernen Küche mit Kochinsel und separatem Hauswirtschaftsraum öffnet. Große Schiebetüren verbinden den Innenbereich mit einer überdachten Veranda mit eingebautem Grill, einer großzügigen Terrasse und einem privaten 52 m² großen Swimmingpool.
Drei Schlafzimmer und vier Badezimmer für maximalen Komfort
Der Schlafbereich ist geschickt im rechten Flügel des Hauses angeordnet und besteht aus:Einem Hauptschlafzimmer mit begehbarem Kleiderschrank und eigenem BadEinem zweiten Schlafzimmer mit eigenem BadEinem dritten Schlafzimmer mit Zugang zu einem Vollbad im FlurEinem zusätzlichen Badezimmer mit Zugang von außen, das für den Poolbereich vorgesehen ist
Luxuriöse Ausstattung und hochwertige SpezifikationenDiese Villa wurde nach höchsten Standards gebaut und umfasst:Fußbodenheizung und voll installierte KlimaanlageIntelligentes Hausautomationssystem (Domotik)Alarmanlage für erhöhte SicherheitHochwertige Außenholzarbeiten mit thermischer Trennung und motorisierten Jalousien in den SchlafzimmernDesigner-Küchenmöbel mit integrierten GerätenLandschaftlich gestalteter Garten mit Sichtschutzhecken aus ZypressenPrivater, abgeschlossener Parkplatz für zwei Fahrzeuge
Entdecken Sie Calpe und seine Umgebung
Calpe ist ein Juwel an der Küste der Region Marina Alta in Alicante, bekannt für seine Mischung aus valencianischem Charme und modernen Annehmlichkeiten. Die Stadt beherbergt drei wunderschöne Sandstrände, den ikonischen Felsen Peñón de Ifach und zwei Segelclubs: den Real Club Náutico de Calpe und den Club Náutico Puerto Blanco.
Entfernungen zu den wichtigsten Sehenswürdigkeiten:Strand: 0,9 kmStadtzentrum von Calpe: 1,5 kmAltea: 11 kmBenidorm: 22 kmGolfplatz Ifach: 9 kmFlughafen Alicante: 78 km (ca. 1 Stunde)Flughafen Valencia: 130 km (ca. 1,5 Stunden)
Ihr ideales Zuhause im Herzen der Costa Blanca
Erleben Sie mediterranes Wohnen vom Feinsten. Kontaktieren Sie uns noch heute, um einen Besichtigungstermin zu vereinbaren und diese wunderschöne Villa in Calpe zu Ihrem neuen Zuhause zu machen.
Eigenschaften der Immobilie
- 3 Schlafzimmer
- 4 Badezimmer
- 249m² Baugröße
- 800m² Grundstücksgröße
- Schwimmbad
EPC-Bewertung
| Energieeffizienzskala |
|---|
| A |
| B |
| C |
| D |
| E |
| F |
| G |
Kostenaufschlüsselung
* Die Übertragungssteuer basiert auf dem Verkaufswert oder dem Katasterwert, je nachdem, welcher der höchste ist.
** Die obigen Informationen werden nur als Richtlinie angezeigt.
Hypothekenrechner
Hypothekenergebnis
* Die obigen Informationen werden von The MHI Group bereitgestellt und dienen nur als Leitfaden. Individuelle Umstände können den von uns angebotenen Zinssatz für eine Hypothek ändern. Bitte klicken Sie auf den untenstehenden Link, um ein personalisiertes Angebot zu erhalten.
Similar Properties
Spanische Immobiliennachrichten und Updates von Spain Property Portal.com
In Spain, two primary taxes are associated with property purchases: IVA (Value Added Tax) and ITP (Property Transfer Tax). IVA, typically applicable to new constructions, stands at 10% of the property's value. On the other hand, ITP, levied on resale properties, varies between regions but generally ranges from 6% to 10%.
Spain Property Portal is an online platform that has revolutionized the way people buy and sell real estate in Spain.
In Spain, mortgages, known as "hipotecas," are common, and the market has seen significant growth and evolution.













