Stellen Sie eine Anfrage zu dieser Immobilie
Neubau Moderne Villen in Finestrat.
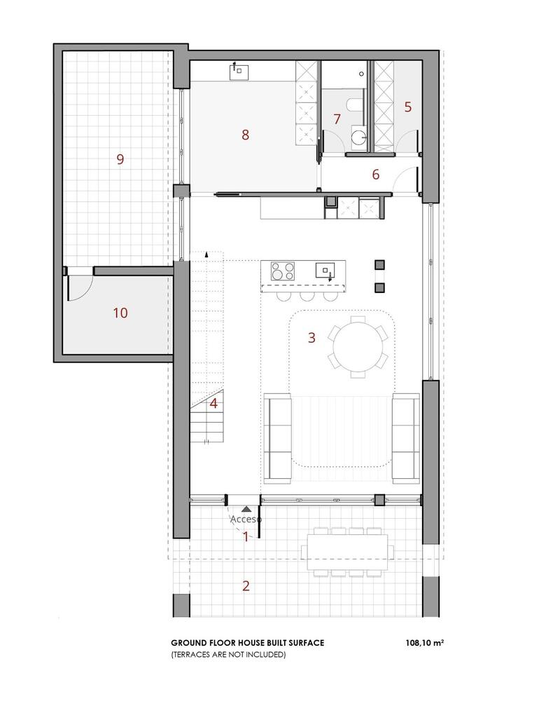
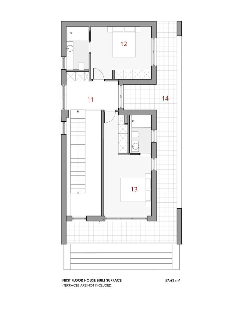
Villen mit 3 Schlafzimmern und 3 Bädern, offener Küche mit Wohnbereich, Terrasse mit herrlichem Blick über Benidorm, privatem Garten mit Schwimmbad und Parkplatz.
Es ist als vollständig begehbarer Raum mit Innen- und Außenwegen konzipiert, die einen unabhängigen Zugang zu jeder Etage ermöglichen. Dieser Entwurf bietet verschiedene Perspektiven auf den architektonischen Komplex und seine Umgebung, wobei das Meer und die Sierra Cortina als malerische Kulisse dienen.
Der Haupteingang der Villa befindet sich im unteren Teil des Grundstücks und bietet ausreichend Parkmöglichkeiten für zwei Fahrzeuge. Ein Wasserspiel mit Liegestühlen führt Sie in das Erdgeschoss, das sich durch breite, gemauerte Wände auszeichnet. An das Wohnzimmer schließt sich nahtlos eine Terrasse an, die durch ein großes Klappfenster ermöglicht wird. Hölzerne Fensterläden an gemauerten Wänden bieten einen teilweise überdachten Außenbereich für zusätzlichen Komfort.
Der Pool mit seinen aquamarinfarbenen Tönen und seiner Auskleidung aus Gresit grenzt an einen Fußbodenbereich aus rutschfesten Porzellanfliesen in Holzoptik.
Zu diesem Bereich gehört auch ein Grillplatz, der je nach den Bedürfnissen des Nutzers gestaltet werden kann und über einen gepflasterten Bereich durch das natürliche Gelände zugänglich ist.
Finestrat liegt in der Region Marina Baixa an der Costa Blanca, in der Nähe des benachbarten Benidorm und etwa 40 Kilometer von der Stadt Alicante und dem internationalen Flughafen entfernt.
Das Dorf liegt am Berghang des Puig Campana und bietet einen schönen Blick auf die Berge, die Küste und das Mittelmeer.
Benidorm ist nur fünf Autominuten von den Grundstücken entfernt und bietet alle Dienstleistungen, die Sie benötigen, wie Geschäfte, Bars, Restaurants, Supermärkte, Banken, Apotheken und mehrere private internationale Schulen.
Eigenschaften der Immobilie
- 3 Schlafzimmer
- 3 Badezimmer
- 198m² Baugröße
- 564m² Grundstücksgröße
- Schwimmbad
- Key Ready
- Garden
- Parking - Space
- Views: Sea
- Air Conditioning: Yes, Pre-Installed
- Air Conditioning Pre-Installation
- Beach: 3000 Meters
- Double Bedrooms: 3
- Garden
- Gated
- Key Ready
- Location: Coastal
- Near Commercial Center
- Near Schools
- Number Of Parking Spaces: 2
- Parking Space
- Private Pool
- Sea Views
- Terrace: 60 Msq.
- Useable Build Space: 138 Msq.
EPC-Bewertung
| Energieeffizienzskala |
|---|
| A |
| B |
| C |
| D |
| E |
| F |
| G |
Kostenaufschlüsselung
* Die Übertragungssteuer basiert auf dem Verkaufswert oder dem Katasterwert, je nachdem, welcher der höchste ist.
** Die obigen Informationen werden nur als Richtlinie angezeigt.
Hypothekenrechner
Hypothekenergebnis
* Die obigen Informationen werden von The MHI Group bereitgestellt und dienen nur als Leitfaden. Individuelle Umstände können den von uns angebotenen Zinssatz für eine Hypothek ändern. Bitte klicken Sie auf den untenstehenden Link, um ein personalisiertes Angebot zu erhalten.
Similar Properties
Spanische Immobiliennachrichten und Updates von Spain Property Portal.com
In Spain, two primary taxes are associated with property purchases: IVA (Value Added Tax) and ITP (Property Transfer Tax). IVA, typically applicable to new constructions, stands at 10% of the property's value. On the other hand, ITP, levied on resale properties, varies between regions but generally ranges from 6% to 10%.
Spain Property Portal is an online platform that has revolutionized the way people buy and sell real estate in Spain.
In Spain, mortgages, known as "hipotecas," are common, and the market has seen significant growth and evolution.
















