Stellen Sie eine Anfrage zu dieser Immobilie
Erstklassige Lage in Benijófar mit bequemem Zugang zu Annehmlichkeiten
Erleben Sie ein neues Niveau des Luxuswohnens in der charmanten Stadt Benijófar, einer begehrten Gegend an der Costa Blanca in Spanien. Diese neu erbauten Doppelhaushälften befinden sich in einem lebendigen Viertel mit einer perfekten Mischung aus Moderne und lokalem Charme und bieten leichten Zugang zu allen wichtigen Dienstleistungen und Attraktionen. Nur 10 km von den goldenen Stränden von Guardamar del Segura und 30 km vom Flughafen Alicante entfernt, sind die Villen strategisch günstig für Komfort und Lifestyle positioniert.
Geräumiges und modernes Design mit hochwertigen Oberflächen
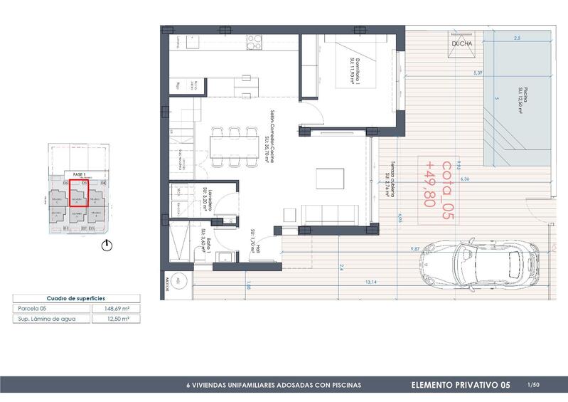
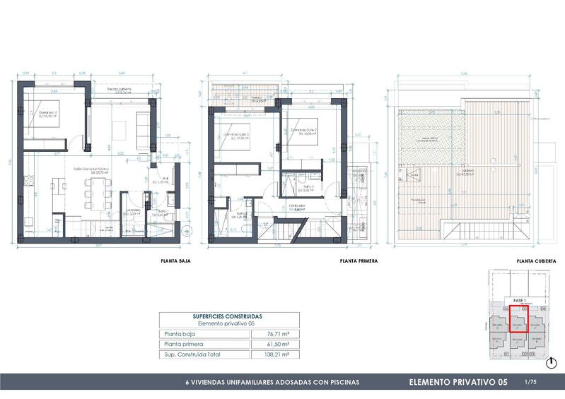
Jede Villa ist mit einer modernen Ästhetik gestaltet und zeichnet sich durch klare Linien und hochwertige Oberflächen aus. Der Grundriss umfasst drei geräumige Schlafzimmer und drei Badezimmer und bietet viel Platz für Familien oder Gäste. Der offene Wohn- und Essbereich verbindet sich nahtlos mit einer voll ausgestatteten Küche und bietet den idealen Raum für Unterhaltung und Familienfeiern. Große Fenster lassen viel Tageslicht herein und schaffen eine helle und einladende Atmosphäre im gesamten Haus.
Private Außenbereiche mit Pool und Solarium
Diese Villen verfügen über private Außenbereiche, die für Entspannung und Genuss des mediterranen Klimas ausgelegt sind. Der geflieste Garten umfasst einen 2,5 x 5 m großen Pool, ideal für eine Abkühlung an warmen Tagen, sowie ausreichend Parkmöglichkeiten. Die Immobilien bieten zudem ein Solarium auf dem Dach, von dem aus Sie die Umgebung genießen können. Das Solarium ist für eine mögliche Installation eines Whirlpools vorbereitet und bietet somit den perfekten Ort, um sich zu entspannen und den Sonnenuntergang zu genießen.
Hochwertige Ausstattung für maximalen Komfort
Jede Villa ist voll ausgestattet mit erstklassigen Geräten, darunter ein integrierter Kühl-Gefrierschrank, Induktionskochfeld, integrierter Geschirrspüler, eingebaute Mikrowelle und Backofen. Weitere Merkmale umfassen Klimaanlagen für die Temperaturregelung, Fußbodenheizung in den Badezimmern und elektrische Rollläden für Privatsphäre. Spotlights und Außenbeleuchtung verstärken die Atmosphäre und machen jede Villa sowohl funktional als auch luxuriös.
Benijófar: Eine Mischung aus Tradition und modernem Leben
Benijófar ist ein charmantes Dorf mit einer einladenden Atmosphäre, bekannt für seine schöne Kirche, lokale Geschäfte, Supermärkte, Apotheken, Banken und köstliche Restaurants. Naturliebhaber werden den nahegelegenen Naturpark zu schätzen wissen, der sich ideal zum Spazieren und Erkunden eignet. Golfliebhaber finden mehrere Golfplätze in kurzer Entfernung, und Familien können nahegelegene Wasserparks in Rojales (4 km) und Torrevieja (12 km) genießen. Die Villen sind außerdem gut angebunden, mit den Autobahnen N-332 und AP-7, die einen einfachen Zugang zu umliegenden Städten bieten.
Bereit, Benijófar zu Ihrem neuen Zuhause zu machen?
Erleben Sie den Luxus und Komfort dieser modernen Villen in Benijófar. Verpassen Sie nicht diese Gelegenheit, das Leben an der Costa Blanca zu genießen. Kontaktieren Sie uns noch heute, um eine Besichtigung zu vereinbaren und den ersten Schritt zu Ihrem Traumhaus zu machen.
Eigenschaften der Immobilie
- 3 Schlafzimmer
- 3 Badezimmer
- 138m² Baugröße
- 148m² Grundstücksgröße
- Schwimmbad
EPC-Bewertung
| Energieeffizienzskala |
|---|
| A |
| B |
| C |
| D |
| E |
| F |
| G |
Kostenaufschlüsselung
* Die Übertragungssteuer basiert auf dem Verkaufswert oder dem Katasterwert, je nachdem, welcher der höchste ist.
** Die obigen Informationen werden nur als Richtlinie angezeigt.
Hypothekenrechner
Hypothekenergebnis
* Die obigen Informationen werden von The MHI Group bereitgestellt und dienen nur als Leitfaden. Individuelle Umstände können den von uns angebotenen Zinssatz für eine Hypothek ändern. Bitte klicken Sie auf den untenstehenden Link, um ein personalisiertes Angebot zu erhalten.
Similar Properties
Spanische Immobiliennachrichten und Updates von Spain Property Portal.com
In Spain, two primary taxes are associated with property purchases: IVA (Value Added Tax) and ITP (Property Transfer Tax). IVA, typically applicable to new constructions, stands at 10% of the property's value. On the other hand, ITP, levied on resale properties, varies between regions but generally ranges from 6% to 10%.
Spain Property Portal is an online platform that has revolutionized the way people buy and sell real estate in Spain.
In Spain, mortgages, known as "hipotecas," are common, and the market has seen significant growth and evolution.





















