Stellen Sie eine Anfrage zu dieser Immobilie
Wohnungen in bester LageEntdecken Sie diese exklusive Gelegenheit, eine renovierte Wohnung in Lomas de Cabo Roig zu besitzen, einer begehrten Gegend an der Orihuela Costa. Diese ursprünglich im Jahr 2008 errichtete Wohnanlage wird derzeit renoviert und soll im Juni 2025 fertiggestellt werden. Ein Musterhaus steht zur Besichtigung zur Verfügung, so dass Sie sich von der Qualität der Ausstattung überzeugen können.
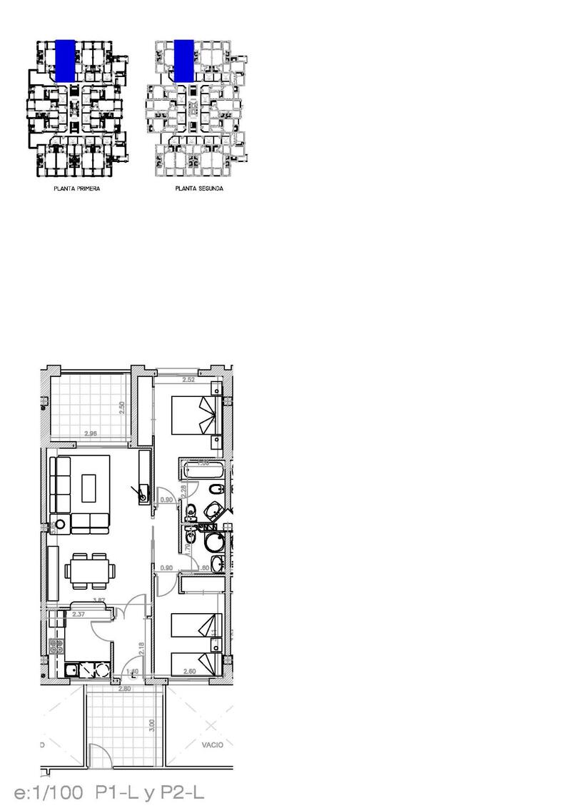
Immobilienoptionen für jeden BedarfDas Projekt bietet 27 renovierte Wohnungen mit unterschiedlichen Grundrissen:
1- und 2-Schlafzimmer-Wohnungen, ideal für Ferienhäuser oder Investitionen.Wohnungen im Erdgeschoss mit eigenem Garten, ideal für das Leben im Freien.Wohnungen im mittleren Stockwerk mit großzügigen Terrassen, ideal, um das mediterrane Klima zu genießen.Penthäuser mit privaten Sonnenterrassen, die einen freien Blick und maximale Privatsphäre bieten.Jede Wohnung wird mit Duschabtrennungen in den Bädern und voll ausgestatteten Küchen mit Geräten geliefert, so dass die Käufer eine schlüsselfertige Lösung erhalten.
Exklusive GemeinschaftseinrichtungenDie Wohnanlage ist auf Komfort und Entspannung ausgelegt und bietet Folgendes:Ein Gemeinschaftsschwimmbad, umgeben von einem schönen Landschaftsgarten.Ein Aufzug für den einfachen Zugang zu allen Etagen.Optionale Tiefgaragenstellplätze gegen Aufpreis.
Eine unschlagbare Lage in Orihuela CostaLomas de Cabo Roig ist eine prestigeträchtige Wohngegend, die nur 2 km von der Küste von Cabo Roig entfernt liegt, wo sich einige der schönsten Strände von Orihuela Costa befinden. Die Gegend ist verkehrstechnisch gut angebunden und bietet eine breite Palette an Dienstleistungen, darunter Geschäfte, Restaurants, Supermärkte und Einkaufszentren.
Entfernungen zu den wichtigsten Punkten von Interesse:
Strände von Cabo Roig und Campoamor - 5 Autominuten entfernt.Einkaufszentrum Zenia Boulevard - 5 km.Golfplatz Villamartín - 4 km.Flughafen Alicante - 30 Minuten mit dem Auto.Flughafen Murcia-Corvera - 1 Stunde mit dem Auto.
Eine kluge Investition an der Costa BlancaMit seiner ausgezeichneten Lage, den vollständig renovierten Wohnungen und der erstklassigen Ausstattung ist diese Anlage eine ideale Gelegenheit für Investitionen, Ferienaufenthalte oder einen dauerhaften Wohnsitz. Verpassen Sie nicht diese einmalige Chance, ein Haus in einer der begehrtesten Gegenden der Costa Blanca zu einem unschlagbaren Preis zu besitzen.
Kontaktieren Sie uns noch heute für weitere Informationen oder um einen Besichtigungstermin zu vereinbaren!
Eigenschaften der Immobilie
- 2 Schlafzimmer
- 2 Badezimmer
- 69m² Baugröße
- Schwimmbad
EPC-Bewertung
| Energieeffizienzskala |
|---|
| A |
| B |
| C |
| D |
| E |
| F |
| G |
Kostenaufschlüsselung
* Die Übertragungssteuer basiert auf dem Verkaufswert oder dem Katasterwert, je nachdem, welcher der höchste ist.
** Die obigen Informationen werden nur als Richtlinie angezeigt.
Hypothekenrechner
Hypothekenergebnis
* Die obigen Informationen werden von The MHI Group bereitgestellt und dienen nur als Leitfaden. Individuelle Umstände können den von uns angebotenen Zinssatz für eine Hypothek ändern. Bitte klicken Sie auf den untenstehenden Link, um ein personalisiertes Angebot zu erhalten.
Similar Properties
Spanische Immobiliennachrichten und Updates von Spain Property Portal.com
In Spain, two primary taxes are associated with property purchases: IVA (Value Added Tax) and ITP (Property Transfer Tax). IVA, typically applicable to new constructions, stands at 10% of the property's value. On the other hand, ITP, levied on resale properties, varies between regions but generally ranges from 6% to 10%.
Spain Property Portal is an online platform that has revolutionized the way people buy and sell real estate in Spain.
In Spain, mortgages, known as "hipotecas," are common, and the market has seen significant growth and evolution.


















