Forespørg om denne ejendom
Ref: RS37583S
Ejendom markedsført af Vivacosta
Dit navn:
Email adresse:
Telefon nr:
Ved at markere dette felt videregiver vi din forespørgsel til op til fem andre ejendomsmæglere, der har lignende ejendomme som denne.
Forespørgsel Detaljer:
Nybygget luksusvilla med havudsigt i La Alberca Polop
Moderne design i fredelige bjergomgivelser
Denne enestående nybyggede villa ligger i La Alberca, et roligt boligområde i bjergene i Polop. Ejendommen er omgivet af skov og natur og tilbyder panoramaudsigt over Middelhavet, bjergene og den historiske by Polop. Villaen er designet med vertikal arkitektonisk elegance og kombinerer privatliv, funktionalitet og problemfri indendørs og udendørs opholdsrum.
Polop er en charmerende landsby på Costa Blanca, der er kendt for sin traditionelle atmosfære og naturlige skønhed. Villaen ligger tæt på alle faciliteter i La Nucia, herunder butikker, restauranter, sportscentre og skoler. Strandene og de livlige kystbyer som Benidorm og Altea ligger kun 15 minutter væk.
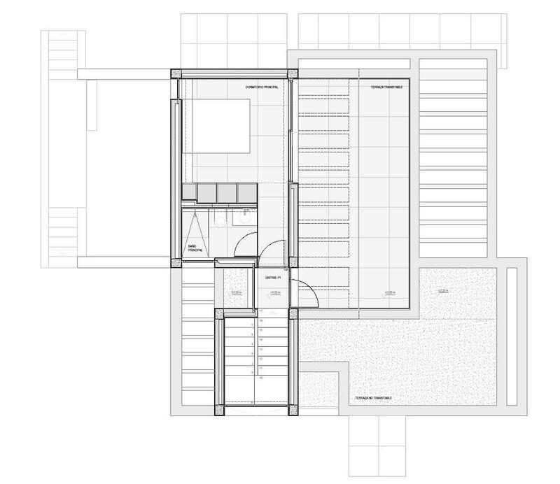
Gennemtænkt fordeling på tre etager
Stueetagen byder dig velkommen med en entré med indbygget garderobe og gæstetoilet. Denne etage omfatter et soveværelse med eget badeværelse og gulv til loft-vinduer, der kan åbnes ud mod en privat sideterrasse. Den lyse åbne stue og spisestue har direkte forbindelse til en pergola-overdækket terrasse og den private saltvandspool, hvilket skaber en harmonisk livsstil indendørs og udendørs.
Den øverste etage er udelukkende dedikeret til master-suiten. Denne private etage tilbyder et soveværelse med eget badeværelse og adgang til en spektakulær 40 m2 terrasse med en betagende panoramaudsigt over havet og bjergene, hvilket sikrer maksimal privatliv og komfort.
Kælderetagen har to ekstra soveværelser med store vinduer med udsigt over en smukt designet forsænket gårdhave, der fylder rummet med naturligt lys. Et fælles badeværelse, fuldt udstyret vaskerum med Haier-apparater og to rummelige teknik- og opbevaringsrum fuldender denne etage.
Førsteklasses funktioner og energieffektivitet
Villaen har finish i høj kvalitet og avancerede systemer, såsom:
Centralt køkken med integrerede BOSCH-apparater
Bordplader i natursten indendørs og udendørs
Panoramavinduer med solbeskyttet forstærket glas
Mitsubishi aerotermisk klimaanlæg
Forinstallation til gulvvarme
Energieffektivitetsklasse A
Forinstallation til smart home-system
Privat parkering til to biler
Den anlagte middelhavshave med automatisk vanding og en elegant gårdhave på lavere niveau øger privatlivet og afslapningen. Taget er forberedt til installation af solceller.
Fremragende beliggenhed og afstande
Polop centrum 2 km
La Nucia 4 km
Benidorms strande 12 km
Altea 10 km
Villaitana Golf 14 km
Alicante lufthavn 65 km
Oplev dit private fristed i Polop
Denne moderne villa med havudsigt tilbyder design, privatliv og komfort i en af de mest attraktive naturlige omgivelser på Costa Blanca. Kontakt os i dag for at arrangere en privat fremvisning og sikre dig dit nye hjem i La Alberca Polop.
Moderne design i fredelige bjergomgivelser
Denne enestående nybyggede villa ligger i La Alberca, et roligt boligområde i bjergene i Polop. Ejendommen er omgivet af skov og natur og tilbyder panoramaudsigt over Middelhavet, bjergene og den historiske by Polop. Villaen er designet med vertikal arkitektonisk elegance og kombinerer privatliv, funktionalitet og problemfri indendørs og udendørs opholdsrum.
Polop er en charmerende landsby på Costa Blanca, der er kendt for sin traditionelle atmosfære og naturlige skønhed. Villaen ligger tæt på alle faciliteter i La Nucia, herunder butikker, restauranter, sportscentre og skoler. Strandene og de livlige kystbyer som Benidorm og Altea ligger kun 15 minutter væk.
Gennemtænkt fordeling på tre etager
Stueetagen byder dig velkommen med en entré med indbygget garderobe og gæstetoilet. Denne etage omfatter et soveværelse med eget badeværelse og gulv til loft-vinduer, der kan åbnes ud mod en privat sideterrasse. Den lyse åbne stue og spisestue har direkte forbindelse til en pergola-overdækket terrasse og den private saltvandspool, hvilket skaber en harmonisk livsstil indendørs og udendørs.
Den øverste etage er udelukkende dedikeret til master-suiten. Denne private etage tilbyder et soveværelse med eget badeværelse og adgang til en spektakulær 40 m2 terrasse med en betagende panoramaudsigt over havet og bjergene, hvilket sikrer maksimal privatliv og komfort.
Kælderetagen har to ekstra soveværelser med store vinduer med udsigt over en smukt designet forsænket gårdhave, der fylder rummet med naturligt lys. Et fælles badeværelse, fuldt udstyret vaskerum med Haier-apparater og to rummelige teknik- og opbevaringsrum fuldender denne etage.
Førsteklasses funktioner og energieffektivitet
Villaen har finish i høj kvalitet og avancerede systemer, såsom:
Centralt køkken med integrerede BOSCH-apparater
Bordplader i natursten indendørs og udendørs
Panoramavinduer med solbeskyttet forstærket glas
Mitsubishi aerotermisk klimaanlæg
Forinstallation til gulvvarme
Energieffektivitetsklasse A
Forinstallation til smart home-system
Privat parkering til to biler
Den anlagte middelhavshave med automatisk vanding og en elegant gårdhave på lavere niveau øger privatlivet og afslapningen. Taget er forberedt til installation af solceller.
Fremragende beliggenhed og afstande
Polop centrum 2 km
La Nucia 4 km
Benidorms strande 12 km
Altea 10 km
Villaitana Golf 14 km
Alicante lufthavn 65 km
Oplev dit private fristed i Polop
Denne moderne villa med havudsigt tilbyder design, privatliv og komfort i en af de mest attraktive naturlige omgivelser på Costa Blanca. Kontakt os i dag for at arrangere en privat fremvisning og sikre dig dit nye hjem i La Alberca Polop.
Egenskaber
- 4 soveværelser
- 3 badeværelser
- 208m² Byg størrelse
- 400m² Grundstørrelse
- Svømmepøl
- Garden
- Parking - Space
- Views: Sea
- beach: 8000 meters
- double bedrooms: 4
- games room
- garden
- gated
- laundry room
- location: rural, mountain, urbanisation
- near commercial center
- near schools
- near trees
- number of parking spaces: 2
- parking space
- private pool
- sea views
- solarium: yes
- storage / trastero
- terrace: 160 msq.
- toilet: 1
- under-build / basement
- useable build space: 139 msq.
EPC -vurdering
| Energivurderingsskala |
|---|
| A |
| B |
| C |
| D |
| E |
| F |
| G |
Omkostningsfordeling
Standard betalingsform
Reservationsdepositum
3.000€
Resten af depositum til 10%
94.000€
Slutbetaling på 90% ved afslutning
873.000€
Ejendomsomkostninger
Ejendomspris
970.000€
Overførselsafgift 8%
77.600€
Notargebyrer (ca.)
600€
Matrikelgebyrer (ca.)
600€
Advokatgebyrer (ca.)
1.500€
* Overførselsafgift er baseret på salgsværdien eller matrikelværdien, der er den højeste.
** Ovenstående oplysninger vises kun som vejledning.
Realkreditlommeregner
Similar Properties
Spanske ejendomsnyheder og opdateringer fra Spain Property Portal.com
In Spain, two primary taxes are associated with property purchases: IVA (Value Added Tax) and ITP (Property Transfer Tax). IVA, typically applicable to new constructions, stands at 10% of the property's value. On the other hand, ITP, levied on resale properties, varies between regions but generally ranges from 6% to 10%.
Spain Property Portal is an online platform that has revolutionized the way people buy and sell real estate in Spain.
In Spain, mortgages, known as "hipotecas," are common, and the market has seen significant growth and evolution.





















