Forespørg om denne ejendom
Ref: AG19MLSC388511
Ejendom markedsført af Spain Property Shop S.L
Dit navn:
Email adresse:
Telefon nr:
Ved at markere dette felt videregiver vi din forespørgsel til op til fem andre ejendomsmæglere, der har lignende ejendomme som denne.
Forespørgsel Detaljer:
If you are looking for a property that combines technical spaciousness with the peace of waking up to Mediterranean views, this home on Calle Cuba (Orihuela-Costa) is for you. Set on a generous 198.86 m² plot, this house offers space, views, and privacy.
Detailed Layout and Surface Areas: The property has a total built area of 161.87 m², excellently distributed over three levels:
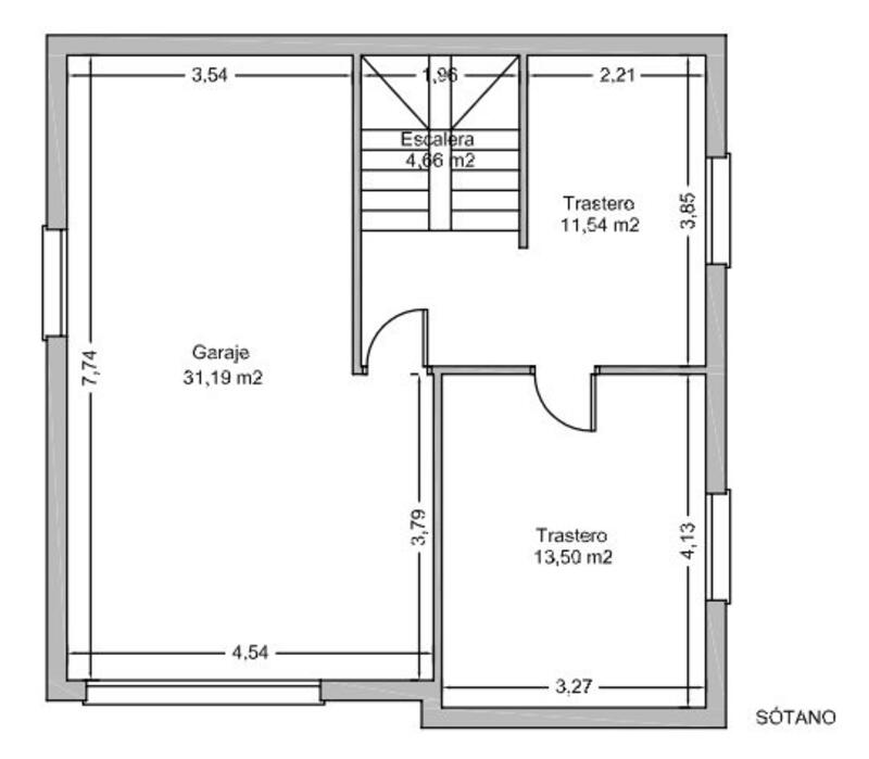
Basement (Maximum Functionality): A versatile space that includes a private garage with an automatic overhead door, an equipped workshop, and a practical storage room.
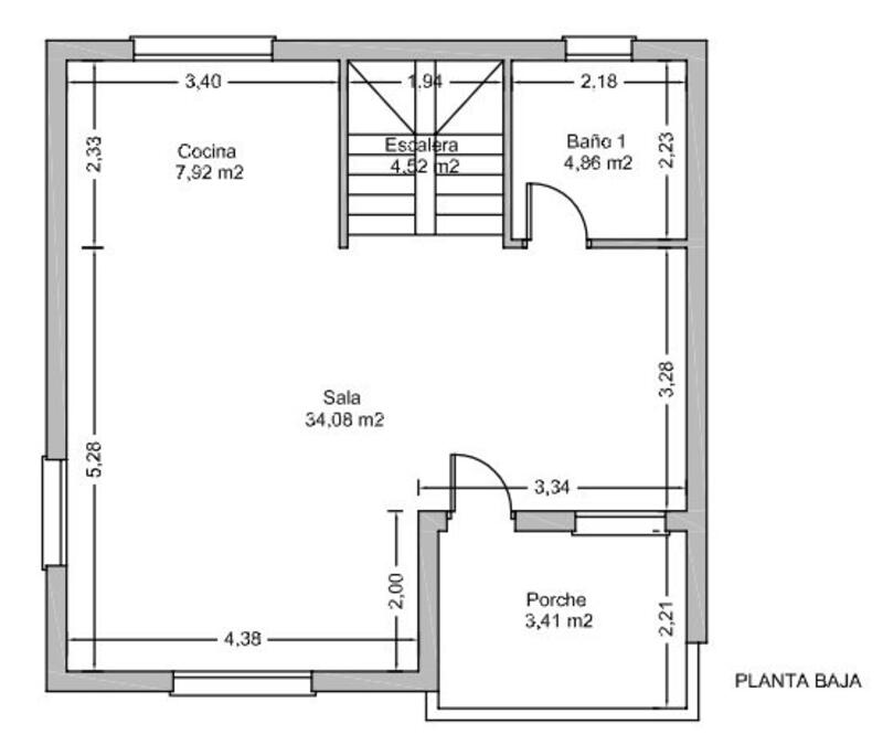
Main Floor (67.30 m² footprint): This level hosts the social area with a bright living room and a separate kitchen. The kitchen connects to a private terrace with direct views of the Villamartín golf course.
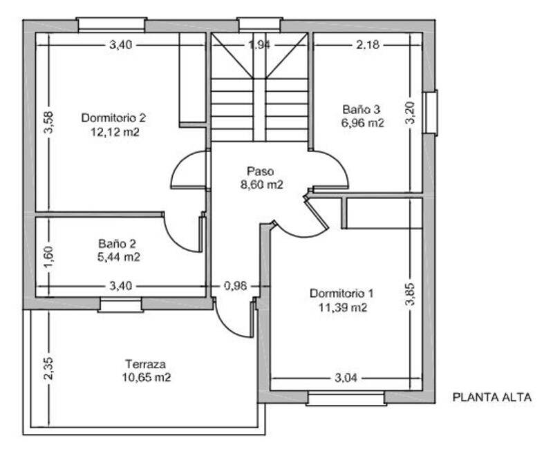
Upper Floor (Rest Area): Features two bedrooms and a full bathroom. From its upper terrace, you can enjoy a privileged panoramic view with the Mediterranean Sea on the horizon.
Exteriors (Private Garden): The portion of the 198.86 m² plot not occupied by the building is dedicated to a private garden and exclusive-use areas, creating a private outdoor oasis for you and your family.
A Privileged Environment in Orihuela-Costa Living in the Filipinas Sector, within the "Residencial Montegolf" complex, is synonymous with exclusivity:
Dual Views: Enjoy the green tranquility of Villamartín Golf and the blue of the Mediterranean from your own terraces.
Space and Comfort: With over 160 m² built, this home is significantly more spacious than the average townhouse in the area.
Strategic Location: Minutes away from Zenia Boulevard, blue flag beaches, and the best services on the Costa Blanca.
The property is located in Phase I, Type B of the residential complex, situated on plot 4-A of Sector O-1. A solid and spacious construction ready to become your new home.
Would you like to visit? The dimensions and views are even more impressive in person. Contact us today to schedule your viewing!
Detailed Layout and Surface Areas: The property has a total built area of 161.87 m², excellently distributed over three levels:
Basement (Maximum Functionality): A versatile space that includes a private garage with an automatic overhead door, an equipped workshop, and a practical storage room.
Main Floor (67.30 m² footprint): This level hosts the social area with a bright living room and a separate kitchen. The kitchen connects to a private terrace with direct views of the Villamartín golf course.
Upper Floor (Rest Area): Features two bedrooms and a full bathroom. From its upper terrace, you can enjoy a privileged panoramic view with the Mediterranean Sea on the horizon.
Exteriors (Private Garden): The portion of the 198.86 m² plot not occupied by the building is dedicated to a private garden and exclusive-use areas, creating a private outdoor oasis for you and your family.
A Privileged Environment in Orihuela-Costa Living in the Filipinas Sector, within the "Residencial Montegolf" complex, is synonymous with exclusivity:
Dual Views: Enjoy the green tranquility of Villamartín Golf and the blue of the Mediterranean from your own terraces.
Space and Comfort: With over 160 m² built, this home is significantly more spacious than the average townhouse in the area.
Strategic Location: Minutes away from Zenia Boulevard, blue flag beaches, and the best services on the Costa Blanca.
The property is located in Phase I, Type B of the residential complex, situated on plot 4-A of Sector O-1. A solid and spacious construction ready to become your new home.
Would you like to visit? The dimensions and views are even more impressive in person. Contact us today to schedule your viewing!
Egenskaber
- 2 soveværelser
- 2 badeværelser
- 162m² Byg størrelse
- 200m² Grundstørrelse
- Balcony
- Secure door
- Veranda
- Heating, Central
- Fully furnished
Omkostningsfordeling
Standard betalingsform
Reservationsdepositum
3.000€
Resten af depositum til 10%
21.500€
Slutbetaling på 90% ved afslutning
220.500€
Ejendomsomkostninger
Ejendomspris
245.000€
Overførselsafgift 8%
19.600€
Notargebyrer (ca.)
600€
Matrikelgebyrer (ca.)
600€
Advokatgebyrer (ca.)
1.500€
* Overførselsafgift er baseret på salgsværdien eller matrikelværdien, der er den højeste.
** Ovenstående oplysninger vises kun som vejledning.
Realkreditlommeregner
Similar Properties
Spanske ejendomsnyheder og opdateringer fra Spain Property Portal.com
In Spain, two primary taxes are associated with property purchases: IVA (Value Added Tax) and ITP (Property Transfer Tax). IVA, typically applicable to new constructions, stands at 10% of the property's value. On the other hand, ITP, levied on resale properties, varies between regions but generally ranges from 6% to 10%.
Spain Property Portal is an online platform that has revolutionized the way people buy and sell real estate in Spain.
In Spain, mortgages, known as "hipotecas," are common, and the market has seen significant growth and evolution.








