Forespørg om denne ejendom
Ref: QPM-N9509
Ejendom markedsført af Quattro Property Management Spain SL
Dit navn:
Email adresse:
Telefon nr:
Ved at markere dette felt videregiver vi din forespørgsel til op til fem andre ejendomsmæglere, der har lignende ejendomme som denne.
Forespørgsel Detaljer:
New Build Residential Apartments in Los Balcones, Torrevieja
Modern Homes in a Prime Residential Area
Discover this attractive new build residential complex located in Los Balcones, one of the most popular and established neighborhoods on the outskirts of Torrevieja. Set in a peaceful environment with excellent access to all essential services, this development is just 4 km from the sandy beaches of the Costa Blanca. Los Balcones is known for its relaxed atmosphere, wide streets, green areas and proximity to hospitals, supermarkets, restaurants and shopping centers, making it ideal for year round living or holiday use.
Contemporary Apartments with Private Outdoor Spaces
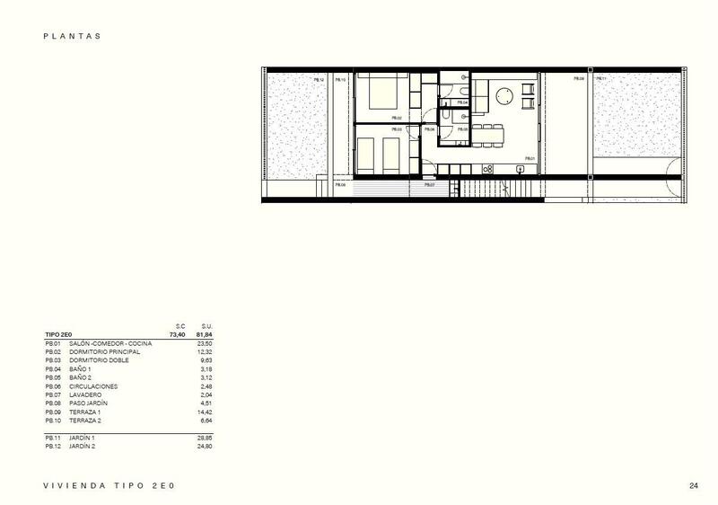
The complex consists of 52 modern apartments built on a total surface of 6700 m2. Each property includes a private parking space and a storage room in the underground. The homes offer 2 or 3 bedrooms and 2 bathrooms, one of them en suite.
Buyers can choose between ground floor apartments with a private garden or upper floor homes with a spacious terrace and a private solarium. These layouts are designed to maximize natural light and provide comfortable indoor and outdoor living spaces to enjoy the Mediterranean climate all year round.
Communal Areas Designed for Relaxation
The project is arranged into four blocks surrounding a large central communal area. This green heart of the development features a swimming pool with a dedicated children area and beautifully landscaped gardens. These shared spaces are perfect for relaxation, socializing and family time in a safe and friendly environment.
Quality Features and Energy Efficient Design
Each apartment is built to modern standards and includes pre installation of ducted air conditioning, an aerothermal hot water system for improved energy efficiency, exterior lighting and double glazed exterior carpentry. The kitchens come fully furnished, offering a functional and stylish space for daily living.
These features ensure a high level of comfort, low maintenance and reduced energy consumption, making the homes both practical and sustainable.
Excellent Location Near Beaches and Golf
Los Balcones offers a strategic location close to many points of interest. The beaches of Torrevieja are approximately 4 km away. Several renowned golf courses such as Villamartin Golf, Las Ramblas Golf and Campoamor Golf are within 10 to 15 km. The University Hospital of Torrevieja is less than 2 km away, adding convenience and peace of mind.
Torrevieja town center is around 5 km away, connected by bus with Los Balcones, where you will find a wide range of shops, restaurants, cultural venues and a lively marina. Alicante International Airport is located about 42 km away, providing easy international connections. The port of Torrevieja is approximately 6 km away.
Ideal for Living or Investment
With its modern design, excellent communal areas and prime location near beaches, golf and services, this new residential complex in Los Balcones Torrevieja is perfect as a permanent residence, holiday home or investment opportunity.
Contact us today for more information or to arrange a viewing of these new build apartments in Los Balcones, Torrevieja.
Egenskaber
- 2 soveværelser
- 2 badeværelser
- 81m² Byg størrelse
- 53m² Grundstørrelse
- Svømmepøl
- communal pool
- near schools
- Gated
- Garden
- Location: Coastal, Urbanisation
- Air Conditioning: Pre-Installed
- Double Bedrooms: 2
- Near Golf / Golf Resort Property
- Terrace: 20 Msq.
- Beach: 3500 Meters
- Number of Parking Spaces: 1
- Useable Build Space: 73 Msq.
- Parking - Space
- Storage / Trastero
- Near Commercial Center
EPC -vurdering
| Energivurderingsskala |
|---|
| A |
| B |
| C |
| D |
| E |
| F |
| G |
Omkostningsfordeling
Standard betalingsform
Reservationsdepositum
3.000€
Resten af depositum til 10%
22.900€
Slutbetaling på 90% ved afslutning
233.100€
Ejendomsomkostninger
Ejendomspris
259.000€
Overførselsafgift 8%
20.720€
Notargebyrer (ca.)
600€
Matrikelgebyrer (ca.)
600€
Advokatgebyrer (ca.)
1.500€
* Overførselsafgift er baseret på salgsværdien eller matrikelværdien, der er den højeste.
** Ovenstående oplysninger vises kun som vejledning.
Realkreditlommeregner
Similar Properties
Spanske ejendomsnyheder og opdateringer fra Spain Property Portal.com
In Spain, two primary taxes are associated with property purchases: IVA (Value Added Tax) and ITP (Property Transfer Tax). IVA, typically applicable to new constructions, stands at 10% of the property's value. On the other hand, ITP, levied on resale properties, varies between regions but generally ranges from 6% to 10%.
Spain Property Portal is an online platform that has revolutionized the way people buy and sell real estate in Spain.
In Spain, mortgages, known as "hipotecas," are common, and the market has seen significant growth and evolution.




















