Forespørg om denne ejendom
Ref: RS88018P
Ejendom markedsført af Vivacosta
Dit navn:
Email adresse:
Telefon nr:
Ved at markere dette felt videregiver vi din forespørgsel til op til fem andre ejendomsmæglere, der har lignende ejendomme som denne.
Forespørgsel Detaljer:
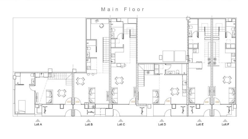
Moderne duplex-loftlejligheder i hjertet af Alicante
Eksklusivt nyt byggeri i Benalúa-kvarteret
Oplev en enestående mulighed for at eje en stilfuld duplex-loftlejlighed i Benalúa, et af de mest livlige og velforbundne kvarterer i Alicante. Dette unikke projekt omdanner seks ubrugte erhvervsenheder til moderne boliglofts, der tilbyder en moderne urban livsstil kun 1 km fra Middelhavskysten. Benalúa er kendt for sine lokale butikker, caféer, kulturelle aktiviteter og sin nærhed til byens centrum, hvilket gør det til et meget eftertragtet område for både beboere og investorer.
Moderne loft-stil design
Hver bolig er blevet fuldstændig redesignet for at tilbyde et friskt, åbent og elegant boligareal. Projektet omfatter 1- og 2-værelses duplex-lofts med 2 badeværelser, alle med imponerende dobbelthøje områder, der forbedrer det naturlige lys og giver en ægte loftstemning. Den øverste etage rummer et soveværelse og et fuldt udstyret badeværelse, hvilket skaber privatliv og komfort.
Med uafhængig adgang fra gaden og privat terrasse kombinerer hver lejlighed moderne arkitektur med praktisk bolig. Højkvalitets finish, moderne indretning og lyse interiører gør disse lofts til et fremragende valg for dem, der søger stil og funktionalitet.
Komfort og fælles faciliteter
Beboerne har adgang til en fælles swimmingpool i bygningen, der skaber en afslappende og forfriskende atmosfære på varme middelhavsdage. De private terrasser og separate indgange tilføjer ekstra bekvemmelighed og eksklusivitet.
Fremragende beliggenhed tæt på vigtige seværdigheder
Bebyggelsen er perfekt beliggende til både beboelse og investering og er omgivet af vigtige faciliteter og store attraktioner:
Alicante strandpromenade: 1 km
Renfe togstation: 0,8 km
El Corte Inglés shoppingcenter: 0,7 km
Alicante retspalads: 0,5 km
Alicante lufthavn: 12 km
Alicante marina og havn: 2 km
Golfbaner (Alicante Golf): 7 km
Området tilbyder fremragende offentlige transportforbindelser, kulturelle attraktioner, grønne områder og nem adgang til byens smukke strande.
En smart investering i Alicantes kystliv
Uanset om du er på udkig efter en primær bolig, en feriebolig eller en investering med stort udlejningspotentiale, udgør disse duplex-loftlejligheder i Benalúa en unik mulighed i et af Alicantes mest lovende områder.
Kontakt os i dag for at reservere din eksklusive loftlejlighed og nyd det moderne liv i hjertet af Alicante.
* Adgang til swimmingpool afventer godkendelse fra boligforeningen, når ændringen af lokalernes anvendelse gennemføres.
Eksklusivt nyt byggeri i Benalúa-kvarteret
Oplev en enestående mulighed for at eje en stilfuld duplex-loftlejlighed i Benalúa, et af de mest livlige og velforbundne kvarterer i Alicante. Dette unikke projekt omdanner seks ubrugte erhvervsenheder til moderne boliglofts, der tilbyder en moderne urban livsstil kun 1 km fra Middelhavskysten. Benalúa er kendt for sine lokale butikker, caféer, kulturelle aktiviteter og sin nærhed til byens centrum, hvilket gør det til et meget eftertragtet område for både beboere og investorer.
Moderne loft-stil design
Hver bolig er blevet fuldstændig redesignet for at tilbyde et friskt, åbent og elegant boligareal. Projektet omfatter 1- og 2-værelses duplex-lofts med 2 badeværelser, alle med imponerende dobbelthøje områder, der forbedrer det naturlige lys og giver en ægte loftstemning. Den øverste etage rummer et soveværelse og et fuldt udstyret badeværelse, hvilket skaber privatliv og komfort.
Med uafhængig adgang fra gaden og privat terrasse kombinerer hver lejlighed moderne arkitektur med praktisk bolig. Højkvalitets finish, moderne indretning og lyse interiører gør disse lofts til et fremragende valg for dem, der søger stil og funktionalitet.
Komfort og fælles faciliteter
Beboerne har adgang til en fælles swimmingpool i bygningen, der skaber en afslappende og forfriskende atmosfære på varme middelhavsdage. De private terrasser og separate indgange tilføjer ekstra bekvemmelighed og eksklusivitet.
Fremragende beliggenhed tæt på vigtige seværdigheder
Bebyggelsen er perfekt beliggende til både beboelse og investering og er omgivet af vigtige faciliteter og store attraktioner:
Alicante strandpromenade: 1 km
Renfe togstation: 0,8 km
El Corte Inglés shoppingcenter: 0,7 km
Alicante retspalads: 0,5 km
Alicante lufthavn: 12 km
Alicante marina og havn: 2 km
Golfbaner (Alicante Golf): 7 km
Området tilbyder fremragende offentlige transportforbindelser, kulturelle attraktioner, grønne områder og nem adgang til byens smukke strande.
En smart investering i Alicantes kystliv
Uanset om du er på udkig efter en primær bolig, en feriebolig eller en investering med stort udlejningspotentiale, udgør disse duplex-loftlejligheder i Benalúa en unik mulighed i et af Alicantes mest lovende områder.
Kontakt os i dag for at reservere din eksklusive loftlejlighed og nyd det moderne liv i hjertet af Alicante.
* Adgang til swimmingpool afventer godkendelse fra boligforeningen, når ændringen af lokalernes anvendelse gennemføres.
Egenskaber
- 2 soveværelser
- 2 badeværelser
- 82m² Byg størrelse
- Svømmepøl
- Air Conditioning: Yes, Pre-Installed
- air conditioning pre-installation
- beach: 1000 meters
- communal pool
- double bedrooms: 2
- location: coastal, urbanisation
- near bus route
- near commercial center
- near schools
- near train station
- space
- terrace: 5 msq.
- useable build space: 74 msq.
EPC -vurdering
| Energivurderingsskala |
|---|
| A |
| B |
| C |
| D |
| E |
| F |
| G |
Omkostningsfordeling
Standard betalingsform
Reservationsdepositum
3.000€
Resten af depositum til 10%
28.990€
Slutbetaling på 90% ved afslutning
287.910€
Ejendomsomkostninger
Ejendomspris
319.900€
Overførselsafgift 8%
25.592€
Notargebyrer (ca.)
600€
Matrikelgebyrer (ca.)
600€
Advokatgebyrer (ca.)
1.500€
* Overførselsafgift er baseret på salgsværdien eller matrikelværdien, der er den højeste.
** Ovenstående oplysninger vises kun som vejledning.
Realkreditlommeregner
Similar Properties
Spanske ejendomsnyheder og opdateringer fra Spain Property Portal.com
In Spain, two primary taxes are associated with property purchases: IVA (Value Added Tax) and ITP (Property Transfer Tax). IVA, typically applicable to new constructions, stands at 10% of the property's value. On the other hand, ITP, levied on resale properties, varies between regions but generally ranges from 6% to 10%.
Spain Property Portal is an online platform that has revolutionized the way people buy and sell real estate in Spain.
In Spain, mortgages, known as "hipotecas," are common, and the market has seen significant growth and evolution.


















