Forespørg om denne ejendom
Ref: EFML4566Z
Ejendom markedsført af España Dream Properties
Dit navn:
Email adresse:
Telefon nr:
Ved at markere dette felt videregiver vi din forespørgsel til op til fem andre ejendomsmæglere, der har lignende ejendomme som denne.
Forespørgsel Detaljer:
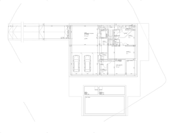
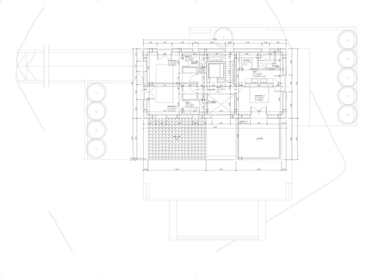
Finca project for sale between Algaida and Montuiri.On a plot of land of 17,076 m2 in a highly sought after area between Algaida and Montuiri with unobstructed views and good road access.Sold with a basic project for a rural house with a total constructed area of 439m2 with two storeys, ground floor and first floor, a large terrace and a swimming pool and basement with double garage and bodega.The project is for a three bedroom, three bathroom property distributed as follows.Areas House Basement Total Area 183m2:Parking Ramp 17m2 - Garage 71m2- Bodega 5m2- Landry Room 13m2- Storage Room 17m2- Guest Toilet 2m2Ground Floor 150m2:Kitchen 14m2- Dining Room 17m2- Terrace 12m2- Guest Bathroom 2m2- Lounge 33m2- Garden Room 16m2First Floor 150m2:Bedroom One 16m2- Bathroom One 11m2- Dressing Room 4m2- Private Terrace 18m2Bedroom Two 15m2- Bathroom Two 4m2Bedroom Three 15m2- Bathroom Three 4m2ExteriorSwimming Pool 35m2- Swimming Pool Terrace 84m2Total Area 439m2 Plot 17076m2The land and project are offered for sale at this price for the buyer to complete the final details of the project and the construction. Detailed plans are available, and there is a provisional outline of the full details of all of the installations including construction materials, plumbing and electrical.The property has been designed to included, underfloor heating, full double glazing, full air conditioning, water deposits both rain water and drinking water, solar panels and a completely enclosed plot with an entrance to the driveway and a garden wall built from Santanyí stone.Just 20 minutes from the airport and less than 25 minutes from the capital it’s a unique opportunity to purchase the project which has been designed as a traditional country residence with a modern interior at a very reasonable price.Contact Us, For more information about this finca project for sale in Algaida Mallorca. Algaida, is a small town in the countryside of the Pla de Mallorca in the central region of Mallorca in the south east of the island, and it includes the smaller communities of Pina and Randa. It is well connected to Palma de Mallorca and the airport with a 20 minute drive by motorway. The town is small and rural with a population of about 6,000.
Egenskaber
- 3 soveværelser
- 3 badeværelser
- 439m² Byg størrelse
- 17.076m² Grundstørrelse
- New Development Property
- Modern Interior
- Laundry room
- Kitchen
- Interior Features
- Heating and Cooling
- Guest Toilet
- Garden Views/ Pool Views
- garden
- Garage and Parking
- Fully Fitted Kitchen
- en suite bathroom
- Dressing room
- Double garage
- countryside views
- countryside
- Construction Licence Basic Proyecto Básico
- Bedroom
- Bathroom
- Air conditioning
Omkostningsfordeling
Standard betalingsform
Reservationsdepositum
3.000€
Resten af depositum til 10%
35.000€
Slutbetaling på 90% ved afslutning
342.000€
Ejendomsomkostninger
Ejendomspris
380.000€
Overførselsafgift 10%
38.000€
Notargebyrer (ca.)
600€
Matrikelgebyrer (ca.)
600€
Advokatgebyrer (ca.)
1.500€
* Overførselsafgift er baseret på salgsværdien eller matrikelværdien, der er den højeste.
** Ovenstående oplysninger vises kun som vejledning.
Realkreditlommeregner
Spanske ejendomsnyheder og opdateringer fra Spain Property Portal.com
In Spain, two primary taxes are associated with property purchases: IVA (Value Added Tax) and ITP (Property Transfer Tax). IVA, typically applicable to new constructions, stands at 10% of the property's value. On the other hand, ITP, levied on resale properties, varies between regions but generally ranges from 6% to 10%.
Spain Property Portal is an online platform that has revolutionized the way people buy and sell real estate in Spain.
In Spain, mortgages, known as "hipotecas," are common, and the market has seen significant growth and evolution.























