Forespørg om denne ejendom
Ref: CSPN-69683
Ejendom markedsført af Complete Spanish Property
Dit navn:
Email adresse:
Telefon nr:
Ved at markere dette felt videregiver vi din forespørgsel til op til fem andre ejendomsmæglere, der har lignende ejendomme som denne.
Forespørgsel Detaljer:
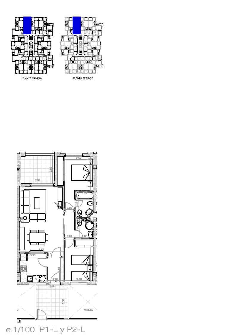
Renoveret boligkompleks i Lomas de Cabo Roig - Renoverede lejligheder
Lejligheder med førsteklasses beliggenhed
Oplev denne eksklusive mulighed for at eje en renoveret lejlighed i Lomas de Cabo Roig, et eftertragtet område i Orihuela Costa. Dette boligkompleks, der oprindeligt blev bygget i 2008, gennemgår en renovering af nogle enheder og vil blive leveret i juni 2025. Der er et udstillingshus til rådighed, så du kan se kvalitetsfinishen på første hånd.
Boligmuligheder, der passer til ethvert behov
Dette byggeri byder på 27 renoverede lejligheder med forskellige planløsninger:
Lejligheder med 1 og 2 soveværelser, som er ideelle til ferieboliger eller investeringer.
Lejligheder i stueetagen med private haver, perfekt til udendørsliv.
Lejligheder på mellemste etage med rummelige terrasser, der er ideelle til at nyde middelhavsklimaet.
Penthouselejligheder med private solarier med åben udsigt og maksimalt privatliv.
Hvert hjem leveres med bruseafskærmning i badeværelserne og fuldt udstyrede køkkener med hvidevarer, hvilket sikrer en nøglefærdig løsning for køberne.
Eksklusive fællesskabsfaciliteter
Boligkomplekset er designet til komfort og afslapning:
En fælles swimmingpool omgivet af smukt anlagte haver.
En elevator, der giver nem adgang til alle etager.
Mulighed for underjordiske parkeringspladser mod ekstra betaling.
En uovertruffen beliggenhed i Orihuela Costa
Lomas de Cabo Roig er et prestigefyldt boligområde, der ligger kun 2 km fra Cabo Roigs kystlinje, hvor nogle af de smukkeste strande i Orihuela Costa ligger. Området har gode vejforbindelser og tilbyder en bred vifte af tjenester, herunder butikker, restauranter, supermarkeder og indkøbscentre.
Afstande til vigtige seværdigheder:
Strandene i Cabo Roig og Campoamor - 5 minutters kørsel.
Zenia Boulevard indkøbscenter - 5 km.
Villamartín golfbane - 4 km.
Alicante lufthavn - 30 minutter i bil.
Murcia-Corvera lufthavn - 1 time i bil.
En smart investering på Costa Blanca
Med sin fremragende beliggenhed, fuldt renoverede lejligheder og førsteklasses faciliteter er dette projekt en ideel mulighed for investering, ferieophold eller permanent ophold. Gå ikke glip af denne unikke chance for at eje et hjem i et af de mest eftertragtede områder på Costa Blanca til en uovertruffen pris.
Kontakt os i dag for mere information eller for at planlægge et besøg!
Lejligheder med førsteklasses beliggenhed
Oplev denne eksklusive mulighed for at eje en renoveret lejlighed i Lomas de Cabo Roig, et eftertragtet område i Orihuela Costa. Dette boligkompleks, der oprindeligt blev bygget i 2008, gennemgår en renovering af nogle enheder og vil blive leveret i juni 2025. Der er et udstillingshus til rådighed, så du kan se kvalitetsfinishen på første hånd.
Boligmuligheder, der passer til ethvert behov
Dette byggeri byder på 27 renoverede lejligheder med forskellige planløsninger:
Lejligheder med 1 og 2 soveværelser, som er ideelle til ferieboliger eller investeringer.
Lejligheder i stueetagen med private haver, perfekt til udendørsliv.
Lejligheder på mellemste etage med rummelige terrasser, der er ideelle til at nyde middelhavsklimaet.
Penthouselejligheder med private solarier med åben udsigt og maksimalt privatliv.
Hvert hjem leveres med bruseafskærmning i badeværelserne og fuldt udstyrede køkkener med hvidevarer, hvilket sikrer en nøglefærdig løsning for køberne.
Eksklusive fællesskabsfaciliteter
Boligkomplekset er designet til komfort og afslapning:
En fælles swimmingpool omgivet af smukt anlagte haver.
En elevator, der giver nem adgang til alle etager.
Mulighed for underjordiske parkeringspladser mod ekstra betaling.
En uovertruffen beliggenhed i Orihuela Costa
Lomas de Cabo Roig er et prestigefyldt boligområde, der ligger kun 2 km fra Cabo Roigs kystlinje, hvor nogle af de smukkeste strande i Orihuela Costa ligger. Området har gode vejforbindelser og tilbyder en bred vifte af tjenester, herunder butikker, restauranter, supermarkeder og indkøbscentre.
Afstande til vigtige seværdigheder:
Strandene i Cabo Roig og Campoamor - 5 minutters kørsel.
Zenia Boulevard indkøbscenter - 5 km.
Villamartín golfbane - 4 km.
Alicante lufthavn - 30 minutter i bil.
Murcia-Corvera lufthavn - 1 time i bil.
En smart investering på Costa Blanca
Med sin fremragende beliggenhed, fuldt renoverede lejligheder og førsteklasses faciliteter er dette projekt en ideel mulighed for investering, ferieophold eller permanent ophold. Gå ikke glip af denne unikke chance for at eje et hjem i et af de mest eftertragtede områder på Costa Blanca til en uovertruffen pris.
Kontakt os i dag for mere information eller for at planlægge et besøg!
Egenskaber
- 2 soveværelser
- 2 badeværelser
- 69m² Byg størrelse
- Svømmepøl
EPC -vurdering
| Energivurderingsskala |
|---|
| A |
| B |
| C |
| D |
| E |
| F |
| G |
Omkostningsfordeling
Standard betalingsform
Reservationsdepositum
3.000€
Resten af depositum til 10%
13.050€
Slutbetaling på 90% ved afslutning
144.450€
Ejendomsomkostninger
Ejendomspris
160.500€
Overførselsafgift 8%
12.840€
Notargebyrer (ca.)
600€
Matrikelgebyrer (ca.)
600€
Advokatgebyrer (ca.)
1.500€
* Overførselsafgift er baseret på salgsværdien eller matrikelværdien, der er den højeste.
** Ovenstående oplysninger vises kun som vejledning.
Realkreditlommeregner
Similar Properties
Spanske ejendomsnyheder og opdateringer fra Spain Property Portal.com
In Spain, two primary taxes are associated with property purchases: IVA (Value Added Tax) and ITP (Property Transfer Tax). IVA, typically applicable to new constructions, stands at 10% of the property's value. On the other hand, ITP, levied on resale properties, varies between regions but generally ranges from 6% to 10%.
Spain Property Portal is an online platform that has revolutionized the way people buy and sell real estate in Spain.
In Spain, mortgages, known as "hipotecas," are common, and the market has seen significant growth and evolution.


















