Forespørg om denne ejendom
Ref: TPG453
Ejendom markedsført af The Property Group
Dit navn:
Email adresse:
Telefon nr:
Ved at markere dette felt videregiver vi din forespørgsel til op til fem andre ejendomsmæglere, der har lignende ejendomme som denne.
Forespørgsel Detaljer:

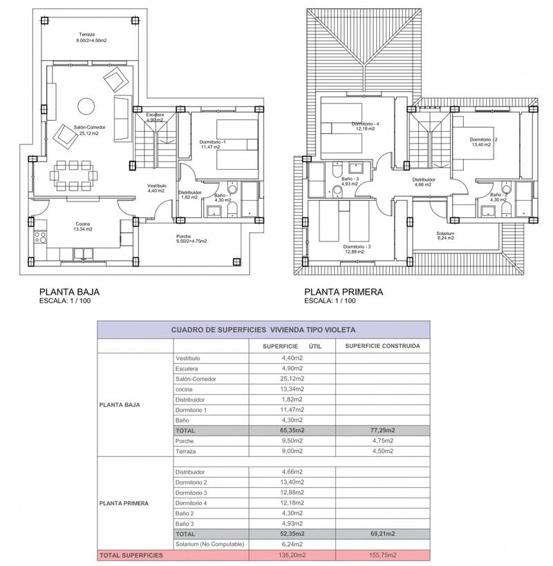
This home is designed for large families or simply those who need extra space for an office and to be able to telework at home. Its 4 bedrooms and 3 bathrooms allow for all this. With a distribution on 2 floors, the day area and the rest or study area are perfectly separated. In this home, light and the openness of all its spaces to the outside predominate. It has two porches and a balcony and large windows in all its rooms that bathe the environment in light and allow you to enjoy the feeling of a well-ventilated home.All rooms, including bathrooms, are exterior. As well as light, space is also important, very well used, minimizing passage areas and thinking about storage, with built-in wardrobes in all bedrooms.The day area features a spacious living room on the ground floor that is fully connected to the outside through its large windows with direct access to the terrace and two extra windows with views of the garden. The kitchen flows into the dining area, through a serving hatch window, being perfectly integrated into daily life, being bright and with a tremendously practical space to furnish to your liking. To complete this area, there is a room that could well be used as a double bedroom and is perfect for locating an office. For greater comfort, next to it is a full bathroom with a large window to the outside.As soon as we enter the upper floor we find a large window with access to a charming balcony. This floor is intended as a rest area, it has three double bedrooms, cozy and with good views. For greater functionality, it has a third full bathroom for use by the whole family.A good neighborhood in a pleasant environment, with trees, gardens, bike paths, unobstructed views...The tranquility you need for your family.Completely closed urbanization by perimeter fencing with access control and 24-hour security service.Feel very close to all the places that accompany you in your daily lifeBeaches 15 minGolf 5 minShopping Center 5 minYacht club 15 minHospital 15 minCities:45 minutes by car from the city of Murcia2 and a half hours by car from the city of Valencia3 hours by car from the city of MalagaAirports45 minutes by car from Murcia International Airport1 hour and ten minutes by car from Almería Airport1 and a half hours by car from Alicante Airport
Egenskaber
- 4 soveværelser
- 3 badeværelser
- 155m² Byg størrelse
- 561m² Grundstørrelse
- Balcony
- Close to amenities
- Fitted kitchen
- Private garden area
- Terrace
- Gated complex
- Road parking
Omkostningsfordeling
Standard betalingsform
Reservationsdepositum
3.000€
Resten af depositum til 10%
26.400€
Slutbetaling på 90% ved afslutning
264.600€
Ejendomsomkostninger
Ejendomspris
294.000€
Overførselsafgift 8%
23.520€
Notargebyrer (ca.)
600€
Matrikelgebyrer (ca.)
600€
Advokatgebyrer (ca.)
1.500€
* Overførselsafgift er baseret på salgsværdien eller matrikelværdien, der er den højeste.
** Ovenstående oplysninger vises kun som vejledning.
Realkreditlommeregner
Similar Properties
Spanske ejendomsnyheder og opdateringer fra Spain Property Portal.com
In Spain, two primary taxes are associated with property purchases: IVA (Value Added Tax) and ITP (Property Transfer Tax). IVA, typically applicable to new constructions, stands at 10% of the property's value. On the other hand, ITP, levied on resale properties, varies between regions but generally ranges from 6% to 10%.
Spain Property Portal is an online platform that has revolutionized the way people buy and sell real estate in Spain.
In Spain, mortgages, known as "hipotecas," are common, and the market has seen significant growth and evolution.