Forespørg om denne ejendom
Ref: N6242/7515
Ejendom markedsført af Costa Blanca Housing
Dit navn:
Email adresse:
Telefon nr:
Ved at markere dette felt videregiver vi din forespørgsel til op til fem andre ejendomsmæglere, der har lignende ejendomme som denne.
Forespørgsel Detaljer:
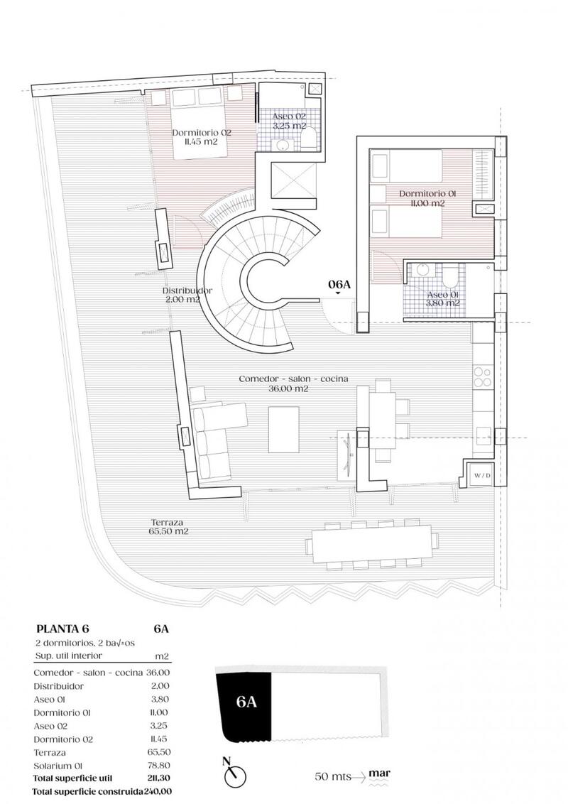
NYBYGGEDE LEJLIGHEDER NÆR STRANDEN I TORREVIEJA
Nybyggede lejligheder med en af de bedste beliggenheder, du kan finde, beliggende 50 meter fra Los Locos stranden.
Residential har 22 lejligheder, 2 og 3 soveværelser og 2 badeværelser, åben planløsning med rummelig layout, store glasvinduer, køkken udstyret med top mærke apparater og indbyggede garderobeskabe, fuldt eqiuped badeværelser med gulvvarme.
Nybygget boligkompleks med moderne design og finish af høj kvalitet har en smuk fælles swimmingpool og grønne områder til rekreation.
Torreviejas Playa de Los Locos har en behagelig promenade med et udvalg af barer, restauranter og chiringuitos, hvor du kan nyde autentiske spanske paellas.
Torrevieja er en spansk by i Alicante-provinsen på Costa Blanca.
Den er kendt for sit typisk middelhavsklima og sin kystlinje. Den har strandpromenader med feriesteder langs sine sandstrande.
Det lille hav- og saltmuseum rummer udstillinger om byens fiskeri- og salthistorie.
I det indre af byen ligger naturparken Lagunas de La Mata-Torrevieja med stier og to saltlaguner, den ene lyserød og den anden grøn.
Alicante lufthavn ligger 40 minutter væk og Murcia lufthavn ca. 1 time væk.
Nybyggede lejligheder med en af de bedste beliggenheder, du kan finde, beliggende 50 meter fra Los Locos stranden.
Residential har 22 lejligheder, 2 og 3 soveværelser og 2 badeværelser, åben planløsning med rummelig layout, store glasvinduer, køkken udstyret med top mærke apparater og indbyggede garderobeskabe, fuldt eqiuped badeværelser med gulvvarme.
Nybygget boligkompleks med moderne design og finish af høj kvalitet har en smuk fælles swimmingpool og grønne områder til rekreation.
Torreviejas Playa de Los Locos har en behagelig promenade med et udvalg af barer, restauranter og chiringuitos, hvor du kan nyde autentiske spanske paellas.
Torrevieja er en spansk by i Alicante-provinsen på Costa Blanca.
Den er kendt for sit typisk middelhavsklima og sin kystlinje. Den har strandpromenader med feriesteder langs sine sandstrande.
Det lille hav- og saltmuseum rummer udstillinger om byens fiskeri- og salthistorie.
I det indre af byen ligger naturparken Lagunas de La Mata-Torrevieja med stier og to saltlaguner, den ene lyserød og den anden grøn.
Alicante lufthavn ligger 40 minutter væk og Murcia lufthavn ca. 1 time væk.
Egenskaber
- 2 soveværelser
- 2 badeværelser
- 240m² Byg størrelse
- Svømmepøl
- Solarium
- Terrace
- Elevator
- Wardrobes cupboard
- Armored Door
- Community Pool
Omkostningsfordeling
Standard betalingsform
Reservationsdepositum
3.000€
Resten af depositum til 10%
45.995€
Slutbetaling på 90% ved afslutning
440.955€
Ejendomsomkostninger
Ejendomspris
489.950€
Overførselsafgift 8%
39.196€
Notargebyrer (ca.)
600€
Matrikelgebyrer (ca.)
600€
Advokatgebyrer (ca.)
1.500€
* Overførselsafgift er baseret på salgsværdien eller matrikelværdien, der er den højeste.
** Ovenstående oplysninger vises kun som vejledning.
Realkreditlommeregner
Similar Properties
Spanske ejendomsnyheder og opdateringer fra Spain Property Portal.com
In Spain, two primary taxes are associated with property purchases: IVA (Value Added Tax) and ITP (Property Transfer Tax). IVA, typically applicable to new constructions, stands at 10% of the property's value. On the other hand, ITP, levied on resale properties, varies between regions but generally ranges from 6% to 10%.
Spain Property Portal is an online platform that has revolutionized the way people buy and sell real estate in Spain.
In Spain, mortgages, known as "hipotecas," are common, and the market has seen significant growth and evolution.








