Gör en förfrågan om den här egenskapen
Ref: EFML4401S
Fastighet som marknadsförs av España Dream Properties
Ditt namn:
E-postadress:
Telefon nr:
Genom att markera den här rutan kommer vi att vidarebefordra din fråga till upp till fem andra fastighetsmäklare som har liknande fastigheter som denna.
Förfrågningsinformation:
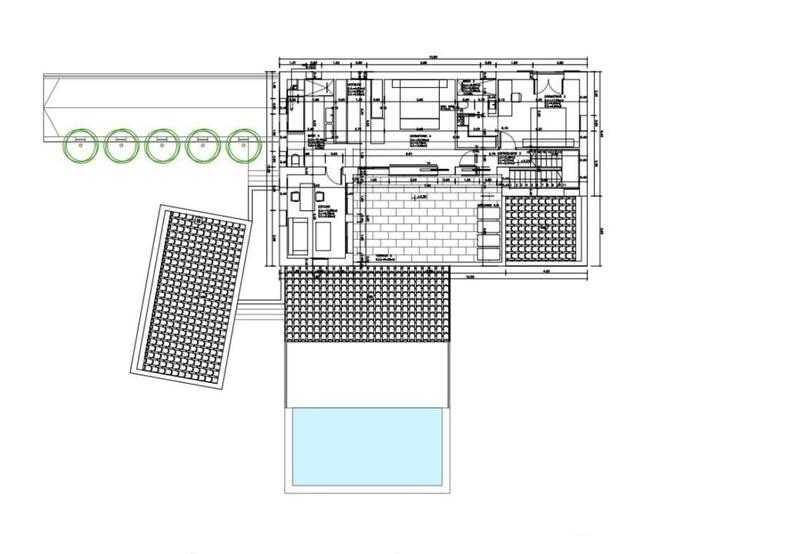
Building Plot with Project For Sale in Binissalem. Discover a remarkable plot with an exceptional project in the prime area of Binissalem: Mediterranean luxury on 18,000 m². This unique opportunity allows you to create a stunning luxury home that merges modern design with Mediterranean elegance, all set in an unparalleled natural environment. Enjoy breath taking views of the Tramuntana Mountains and a south facing orientation that ensures abundant natural light throughout the day. This prime location is perfect for those who value privacy, comfort, and an extraordinary backdrop. The building license is currently filed and awaiting approval, and the plot is equipped with electricity from Endesa, with an application for a well already submitted.Binissalem Project Highlights: The proposed home will span 490 m² across two levels, featuring a stylish and functional layout: Four spacious double bedrooms, including two master suites: One master suite boasts an en-suite bathroom, a dressing room, and a private office. The second master suite also includes an en-suite bathroom and dressing room. Four full bathrooms plus a guest toilet. A generous living-dining area with a designer suspended fireplace, seamlessly connecting to the porch and a 36 m² pool. The porch features a barbecue area, perfect for enjoying the Mediterranean weather. A gourmet kitchen with a central island. Outdoor areas include a 36 m² private pool and expansive gardens.Independent Studio: The design incorporates a separate studio, offering guests privacy and comfort.Design and Aesthetics: A harmonious blend of traditional Mallorcan architecture and modern design. Large windows create a continuous connection with the stunning landscape, while the interiors are crafted for light, comfort, and sophistication.Sustainability and Comfort: The south facing orientation enhances energy efficiency, while Endesa electricity and a well ensure the home is self-sufficient and eco-friendly.Binissalem Mallorca within the county of the Raiguer Mallorca. Located in the centre of the island with good transport links to Palma de Mallorca and the beaches in the north of the island Binissalem is a vibrate small town. Famous for wine production and is the oldest and largest Denomination de Origen in Mallorca. From its origins a wealthy community Binissalem has many large historic buildings built with the local stone which the village is famous for. The original settlement was of Moorish origin the name of the village means the sons of (Binis) peace or salvation (Salem), Biniagual is a small hamlet included in the municipality.Read our blog: Building a House in Mallorca and Buying Land in Mallorca urban and rural plots.
Egenskaper
- 4 sovrum
- 4 badrum
- 490m² Bygg storlek
- 18.000m² Tomtstorlek
- Space for a Swimming Pool
- Property Views
- Property Location
- Pool
- Interior of Mallorca
- countryside views
- countryside
Kostnadsfördelning
Standard betalningsform
Reservationsdeposition
3.000€
Återstoden av insättningen till 10%
76.000€
Slutbetalning på 90% vid slutförande
711.000€
Fastighetsköpskostnader
Fastighetspris
790.000€
Överföringsskatt 10%
79.000€
Notaravgifter (cirka)
600€
Matrikelavgifter (cirka)
600€
Juridiska avgifter (cirka)
1.500€
* Överföringsskatt baseras på försäljningsvärdet eller matrikelvärdet som är det högsta.
** Informationen ovan visas endast som en guide.
Amorteringskalkylator
Spanska fastighetsnyheter och uppdateringar av Spain Property Portal.com
In Spain, two primary taxes are associated with property purchases: IVA (Value Added Tax) and ITP (Property Transfer Tax). IVA, typically applicable to new constructions, stands at 10% of the property's value. On the other hand, ITP, levied on resale properties, varies between regions but generally ranges from 6% to 10%.
Spain Property Portal is an online platform that has revolutionized the way people buy and sell real estate in Spain.
In Spain, mortgages, known as "hipotecas," are common, and the market has seen significant growth and evolution.















