Gör en förfrågan om den här egenskapen
Ref: QPM-N6212
Fastighet som marknadsförs av Quattro Property Management Spain SL
Ditt namn:
E-postadress:
Telefon nr:
Genom att markera den här rutan kommer vi att vidarebefordra din fråga till upp till fem andra fastighetsmäklare som har liknande fastigheter som denna.
Förfrågningsinformation:
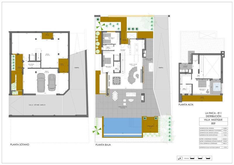
NYBYGGD LYXVILLA I FIRST LINE VILLA PÅ ALGORFA GOLFBANA
Nybyggd första radens golfvilla i La Finca Golf Resort.
Lyxvilla i 2 plan med 3 sovrum, 3 badrum, huvudsvit med klädkammare, golvvärme (hela fastigheten), privat trädgård med infinitypool och kylområde, hemautomationssystem, hemautomationssystem, underjordiskt garage.
La Finca Golf Resort ligger i kommunen Algorfa, i Vega Baja vid Segurafloden, denna lilla stad har traditionellt varit ägnad åt jordbruk, främst till odling av kronärtskockor och citrusfrukter.
Algorfa har en infrastruktur av högkvalitativa tjänster som gör att du kan leva bekvämt.
Stäng de underbara stränderna i Guardamar och Torrevieja där du kan njuta av dess varma vatten och sola i mer än trehundra dagar om året.
Dessutom hittar du i dessa turiststäder köpcentrum, restauranger och nöjesställen.
Alicantes flygplats ligger 40 minuters bilresa bort och Murcias flygplats ligger 55 minuters bilresa bort.
Egenskaper
- 3 sovrum
- 3 badrum
- 203m² Bygg storlek
- 461m² Tomtstorlek
- Simbassäng
- Private pool
- BBQ
- near schools
- Gated
- Garden
- Near Golf / Golf Resort Property
- Double Bedrooms: 3
- Location: Urbanisation
- Beach: 14000 Meters
- Number of Parking Spaces: 2
- Useable Build Space: 175 Msq.
- Near Commercial Center
- Under-Build / Basement
- Terrace: 179 Msq.
- Parking - Space - Garage - Double Garage
EPC -betyg
| Energiklassningsskala |
|---|
| A |
| B |
| C |
| D |
| E |
| F |
| G |
Kostnadsfördelning
Standard betalningsform
Reservationsdeposition
3.000€
Återstoden av insättningen till 10%
142.500€
Slutbetalning på 90% vid slutförande
1.309.500€
Fastighetsköpskostnader
Fastighetspris
1.455.000€
Överföringsskatt 8%
116.400€
Notaravgifter (cirka)
600€
Matrikelavgifter (cirka)
600€
Juridiska avgifter (cirka)
1.500€
* Överföringsskatt baseras på försäljningsvärdet eller matrikelvärdet som är det högsta.
** Informationen ovan visas endast som en guide.
Amorteringskalkylator
Similar Properties
Spanska fastighetsnyheter och uppdateringar av Spain Property Portal.com
In Spain, two primary taxes are associated with property purchases: IVA (Value Added Tax) and ITP (Property Transfer Tax). IVA, typically applicable to new constructions, stands at 10% of the property's value. On the other hand, ITP, levied on resale properties, varies between regions but generally ranges from 6% to 10%.
Spain Property Portal is an online platform that has revolutionized the way people buy and sell real estate in Spain.
In Spain, mortgages, known as "hipotecas," are common, and the market has seen significant growth and evolution.


















