Gör en förfrågan om den här egenskapen
Ref: CSPN-84947
Fastighet som marknadsförs av Complete Spanish Property
Ditt namn:
E-postadress:
Telefon nr:
Genom att markera den här rutan kommer vi att vidarebefordra din fråga till upp till fem andra fastighetsmäklare som har liknande fastigheter som denna.
Förfrågningsinformation:
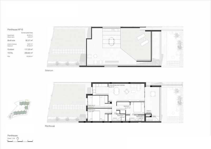
NEW BUILD BUNGALOWS IN RODA GOLF
New Build residential complex located on a south-facing plot inside the prestigious Roda Golf & Beach Resort, bordering the course with its manicured fairways and feature lakes.This beautiful complex comprises 37 spacious homes surrounding a stunning pool and communal gardens.
This modern residential offers a range of property types, views and orientations, according to your requirements. All bungalow apartments boast 3 double bedrooms, 2 bathrooms, a light and spacious open-plan living-dining room with American kitchen and fantastic outside space. All include off-road parking and a private storeroom.
The 18 ground floor bungalows enjoy an interior terrace and garden which lead out to the communal gardens and pool area, as well as a large, gated rear terrace and garden.The 18 penthouses include a front balcony off the living room, as well as a fantastic, 90m2 private roof solarium with summer kitchen.
Residential complex has been designed to maximise the use of space and light. Superbly built and including a wide range of extras, this exclusive promotion is a real oasis on Spain´s Costa Calida.
At the heart of the development lies a stunning communal pool area, surrounded by Mediterranean vegetation. Enjoying sun all day long thanks to its south facing orientation, it is the perfect place to swim, relax and soak up the Murcian sunshine.
As well as enjoying fantastic inside space, the ground floor properties boast a beautiful front terrace plus additional, private garden that leads out into the interior of the development with its stunning communal gardens and pool area.
In addition, they offer a back terrace and enclosed garden for maximum privacy, with a gate that leads out to the exterior of the urbanisation. The duel orientation ensures that the homes enjoy sun and shade all day long.
A beautifully maintained, Dave Thomas designed 18 hole course with lakes, strategically placed bunkers, undulating greens and lush Mediterranean vegetation. A private resort with 24 hour security, its own taxi rank, a stunning club house with a la carte restaurant, gym with lake views and sports area. And all this just a stroll or cycle ride away from the beaches and tranquil waters of the Mar Menor inland lagoon.
This residential has a fantastic selection of golden sandy beaches on its doorstep, as well as a a wide range of watersports. Enjoy both the Mar Menor and the Mediterranean seas from this paradise on the Murcian coastline.
New Build residential complex located on a south-facing plot inside the prestigious Roda Golf & Beach Resort, bordering the course with its manicured fairways and feature lakes.This beautiful complex comprises 37 spacious homes surrounding a stunning pool and communal gardens.
This modern residential offers a range of property types, views and orientations, according to your requirements. All bungalow apartments boast 3 double bedrooms, 2 bathrooms, a light and spacious open-plan living-dining room with American kitchen and fantastic outside space. All include off-road parking and a private storeroom.
The 18 ground floor bungalows enjoy an interior terrace and garden which lead out to the communal gardens and pool area, as well as a large, gated rear terrace and garden.The 18 penthouses include a front balcony off the living room, as well as a fantastic, 90m2 private roof solarium with summer kitchen.
Residential complex has been designed to maximise the use of space and light. Superbly built and including a wide range of extras, this exclusive promotion is a real oasis on Spain´s Costa Calida.
At the heart of the development lies a stunning communal pool area, surrounded by Mediterranean vegetation. Enjoying sun all day long thanks to its south facing orientation, it is the perfect place to swim, relax and soak up the Murcian sunshine.
As well as enjoying fantastic inside space, the ground floor properties boast a beautiful front terrace plus additional, private garden that leads out into the interior of the development with its stunning communal gardens and pool area.
In addition, they offer a back terrace and enclosed garden for maximum privacy, with a gate that leads out to the exterior of the urbanisation. The duel orientation ensures that the homes enjoy sun and shade all day long.
A beautifully maintained, Dave Thomas designed 18 hole course with lakes, strategically placed bunkers, undulating greens and lush Mediterranean vegetation. A private resort with 24 hour security, its own taxi rank, a stunning club house with a la carte restaurant, gym with lake views and sports area. And all this just a stroll or cycle ride away from the beaches and tranquil waters of the Mar Menor inland lagoon.
This residential has a fantastic selection of golden sandy beaches on its doorstep, as well as a a wide range of watersports. Enjoy both the Mar Menor and the Mediterranean seas from this paradise on the Murcian coastline.
Egenskaper
- 3 sovrum
- 2 badrum
- 94m² Bygg storlek
- Simbassäng
EPC -betyg
| Energiklassningsskala |
|---|
| A |
| B |
| C |
| D |
| E |
| F |
| G |
Kostnadsfördelning
Standard betalningsform
Reservationsdeposition
3.000€
Återstoden av insättningen till 10%
31.900€
Slutbetalning på 90% vid slutförande
314.100€
Fastighetsköpskostnader
Fastighetspris
349.000€
Överföringsskatt 8%
27.920€
Notaravgifter (cirka)
600€
Matrikelavgifter (cirka)
600€
Juridiska avgifter (cirka)
1.500€
* Överföringsskatt baseras på försäljningsvärdet eller matrikelvärdet som är det högsta.
** Informationen ovan visas endast som en guide.
Amorteringskalkylator
Similar Properties
Spanska fastighetsnyheter och uppdateringar av Spain Property Portal.com
In Spain, two primary taxes are associated with property purchases: IVA (Value Added Tax) and ITP (Property Transfer Tax). IVA, typically applicable to new constructions, stands at 10% of the property's value. On the other hand, ITP, levied on resale properties, varies between regions but generally ranges from 6% to 10%.
Spain Property Portal is an online platform that has revolutionized the way people buy and sell real estate in Spain.
In Spain, mortgages, known as "hipotecas," are common, and the market has seen significant growth and evolution.























