Сделать запрос об этой собственности
Превосходное расположение рядом с Мар Менор
Эти недавно построенные виллы расположены в престижном Santa Rosalia Lake and Life Resort, частном закрытом жилом комплексе в регионе Мурсия. Окруженный первоклассными полями для гольфа и всего в 4 км от золотых пляжей Мар Менор, комплекс предлагает идеальное сочетание уединения, природы и роскошной жизни. Оживленный прибрежный городок Лос-Алькасарес находится всего в 5 минутах езды, а исторический город Картахена – в 15 минутах. Международный аэропорт Мурсии расположен примерно в 22 км, что обеспечивает легкий доступ из крупных европейских городов.
Современные виллы, спроектированные для комфорта
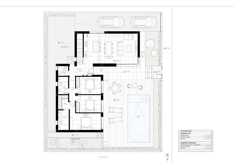
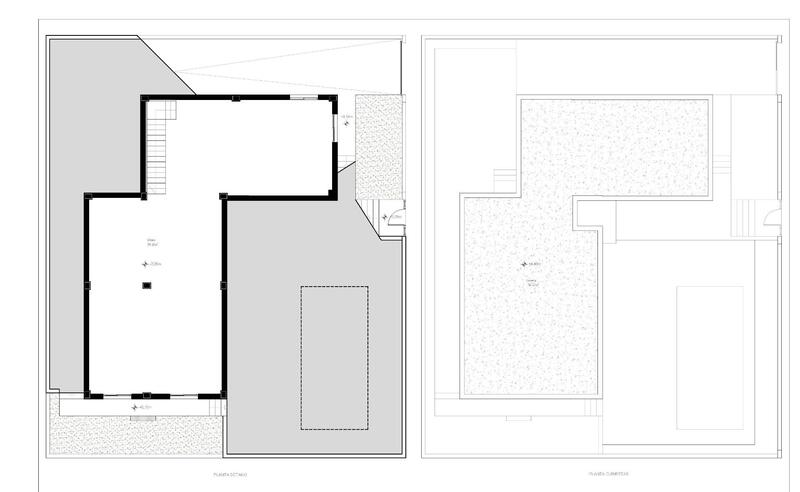
Каждая вилла имеет современный открытый план с 3 спальнями, 2 ванными комнатами и гостевым туалетом. Светлая и просторная гостиная объединяет в себе полностью оборудованную кухню с обеденной и гостиной зоной, выходящую в ландшафтный частный сад с бассейном. Также имеется частная парковка вне дороги. На нижнем уровне находится отделаный подвал площадью 136 м² с гладкими стенами, подключением к водопроводу и электричеству, который может служить дополнительными спальнями, офисом, тренажерным залом, кинозалом или детской игровой зоной.
Высококачественная отделка и экологичные характеристики
Внимание к деталям прослеживается во всех аспектах этих домов. Особое внимание заслуживают усиленная входная дверь, автоматические жалюзи в спальнях, встроенные шкафы и кухня, оборудованная бытовой техникой. Экологичное проживание обеспечивают шесть установленных фотоэлектрических солнечных панелей. Сад полностью отделана искусственной травой, пальмами, автоматической системой полива и декоративными кустарниками. Эффективная система кондиционирования воздуха обеспечивает комфорт круглый год.
Озеро Санта-Росалия и Life Resort – оазис в карибском стиле
Курорт может похвастаться 126 000 м² красиво благоустроенных зеленых зон с пешеходными и велосипедными дорожками, спортивными сооружениями, кортами для паддл-тенниса и тенниса, мини-гольфом, парками для собак, зонами отдыха и клубом. Центральным элементом является впечатляющая кристально чистая лагуна площадью 17 000 м² с белыми песчаными пляжами и пальмами, создающая настоящую карибскую атмосферу. На двух островах расположены зоны отдыха, включая бар и очаровательные пляжные клубы, разбросанные по всему озеру.
Идеальное место для отдыха, спорта и инвестиций
Этот уникальный комплекс идеально подходит для тех, кто ищет основное место жительства, дом для отдыха или высокодоходную инвестицию. Его стратегическое расположение обеспечивает легкий доступ к культурным, гастрономическим и развлекательным достопримечательностям, что делает его исключительным выбором как для семей, так и для любителей гольфа.
Свяжитесь с нами сегодня, чтобы приобрести свою новую виллу в Santa Rosalia Lake and Life Resort и начать наслаждаться средиземноморским образом жизни.
Характеристики недвижимости
- 3 спальни
- 2 ванные комнаты
- 272m² Размер сборки
- 426m² Размер участка
- Бассейн
Рейтинг EPC
| Шкала оценки энергопотребления |
|---|
| A |
| B |
| C |
| D |
| E |
| F |
| G |
Разбивка затрат
* Налог на передачу основан на продажной или кадастровой стоимости, в зависимости от того, что больше.
** Приведенная выше информация отображается только для справки.
Калькулятор ипотеки
Результат ипотеки
* Приведенная выше информация предоставлена MHI Group и предназначена только для справки. Индивидуальные обстоятельства могут изменить ставку, которую мы предлагаем по ипотеке. Пожалуйста, нажмите на ссылку ниже, чтобы получить персональное ценовое предложение.
Similar Properties
Новости и обновления испанской недвижимости от Spain Property Portal.com
In Spain, two primary taxes are associated with property purchases: IVA (Value Added Tax) and ITP (Property Transfer Tax). IVA, typically applicable to new constructions, stands at 10% of the property's value. On the other hand, ITP, levied on resale properties, varies between regions but generally ranges from 6% to 10%.
Spain Property Portal is an online platform that has revolutionized the way people buy and sell real estate in Spain.
In Spain, mortgages, known as "hipotecas," are common, and the market has seen significant growth and evolution.















