Stellen Sie eine Anfrage zu dieser Immobilie
WUNDERSCHÖNES APARTMENT MIT TRAUMHAFTER TERRASSE NUR EIN SCHRITT VOM MEER – SOTAVENTO, LA TEJITA!
Smilo Properties präsentiert Ihnen eine einzigartige Gelegenheit, in einer der schönsten und begehrtesten Gegenden im Süden Tenerifes zu wohnen oder zu investieren: La Tejita, direkt neben dem berühmten Strand La Tejita und dem imposanten Montaña Roja, einer unvergleichlichen Naturlandschaft.
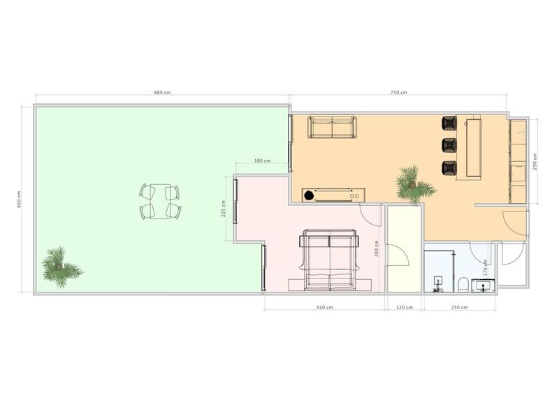
Dieses geräumige und helle Apartment wurde ursprünglich mit zwei Doppelzimmern konzipiert, wurde jedoch kürzlich umgestaltet, um einen großen offenen Raum mit einem Schlafzimmer zu schaffen, was mehr Platz und Komfort bietet. Es kann jedoch leicht wieder in zwei Doppelzimmer umgewandelt werden, falls gewünscht, was es vielseitig und an unterschiedliche Bedürfnisse anpassbar macht.
Der größte Reiz ist zweifellos die spektakuläre private Terrasse von etwa 50 m², die sehr sonnig ist und mit einem hervorragenden Sonnenschutz ausgestattet wurde – perfekt, um das warme Klima Tenerifes das ganze Jahr über zu genießen. Ein idealer Raum zum Entspannen, Sonnenbaden, mit Freunden zu teilen oder sogar im Freien zu arbeiten.
Das Apartment gehört zu einer modernen und sehr gepflegten Wohnanlage, SOTAVENTO, mit angenehmen Gemeinschaftsbereichen, Gemeinschaftspool, Padelplatz, Gärten und nur wenige Meter vom Meer entfernt. Die Lage ist einfach perfekt: In 2 Minuten zu Fuß erreichen Sie das Einkaufszentrum La Tejita, wo Sie Supermärkte, Restaurants, Cafés, Geschäfte usw. finden. Alles, was Sie brauchen, ist bequem erreichbar.
Außerdem wird das Apartment mit einem Parkplatz verkauft, was einen großen Mehrwert und Komfort für die Bewohner oder zukünftigen Mieter darstellt.
Diese Immobilie ist ideal sowohl als Hauptwohnsitz, Zweitwohnsitz für den Urlaub oder als Investition zur Vermietung, da die Nachfrage in dieser Gegend sehr hoch ist.
Verpassen Sie nicht diese einzigartige Gelegenheit, eine Immobilie mit so viel Potenzial zu erwerben, in einer paradiesischen Umgebung und mit allen Annehmlichkeiten.
Kontaktieren Sie uns für weitere Informationen oder um einen Besichtigungstermin zu vereinbaren! Leben Sie den Traum, Ihr Zuhause am Meer zu haben.
Eigenschaften der Immobilie
- 2 Schlafzimmer
- 1 Bad
- 113m² Baugröße
- Schwimmbad
- aire acondicionado
- amueblado
- armarios empotrados
- ascensor
- cocina amueblada
- cocina equipada
- edificio con garaje
- luminoso
- piscina comunitaria
- pista de pádel
- plaza garaje incluida
- terraza
EPC-Bewertung
| Energieeffizienzskala |
|---|
| A |
| B |
| C |
| D |
| E |
| F |
| G |
Kostenaufschlüsselung
* Die Übertragungssteuer basiert auf dem Verkaufswert oder dem Katasterwert, je nachdem, welcher der höchste ist.
** Die obigen Informationen werden nur als Richtlinie angezeigt.
Hypothekenrechner
Hypothekenergebnis
* Die obigen Informationen werden von The MHI Group bereitgestellt und dienen nur als Leitfaden. Individuelle Umstände können den von uns angebotenen Zinssatz für eine Hypothek ändern. Bitte klicken Sie auf den untenstehenden Link, um ein personalisiertes Angebot zu erhalten.
Similar Properties
Spanische Immobiliennachrichten und Updates von Spain Property Portal.com
In Spain, two primary taxes are associated with property purchases: IVA (Value Added Tax) and ITP (Property Transfer Tax). IVA, typically applicable to new constructions, stands at 10% of the property's value. On the other hand, ITP, levied on resale properties, varies between regions but generally ranges from 6% to 10%.
Spain Property Portal is an online platform that has revolutionized the way people buy and sell real estate in Spain.
In Spain, mortgages, known as "hipotecas," are common, and the market has seen significant growth and evolution.























