Forespørg om denne ejendom
Ref: EFML8673E
Ejendom markedsført af España Dream Properties
Dit navn:
Email adresse:
Telefon nr:
Ved at markere dette felt videregiver vi din forespørgsel til op til fem andre ejendomsmæglere, der har lignende ejendomme som denne.
Forespørgsel Detaljer:
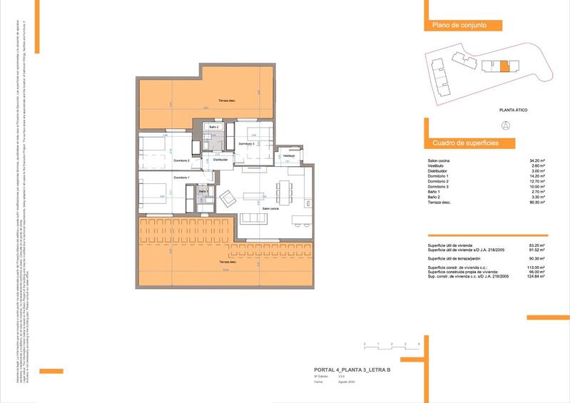
*** PENTHOUSE FOR SALE IN FRONT OF THE BEACH, WITH 90SQM TERRACES, FACING SOUTH AND WITH MAGNIFICENT SEA VIEWS. DON'T MISS THIS UNIQUE OPPORTUNITY !!!. ( *** SEE FLOORPLAN BETWEEN THE PHOTOS *** ). *** PARKING SPACE AND STORAGE ROOM INCLUDED IN THE PRICE !!!. Closed, modern and functional residential complex, an ideal place to live. The development consists of 72 homes with 2, 3 and 4 bedrooms, distributed on the ground floor, first, second and penthouse. All the houses have a south or southwest orientation and sea views in a large number of them. In addition, the ground floors have a pleasant garden and the penthouses have large terraces. All homes have at least one parking space and storage room. We have taken care of every detail to turn this development into your future home. We offer attractive homes with an urban, exclusive and functional design that have been equipped with first class qualities. The common areas are spaces designed to enjoy leisure and sports in a quiet environment. Excellent garden areas with community pool, gym and social-gourmet room, where you can enjoy your free time to the fullest. A place to enjoy, located between Cala de Mijas and Fuengirola, and just 2 minutes walk from the beach. This promotion offers many opportunities for leisure and service, such as several Golf Courses, among which is the "Chaparral Golf Club", less than two kilometers from the promotion, shopping centers, supermarkets, restaurants, a Health Center and various pharmacies. La Cala de Mijas is located in a unique environment and very well connected. It connects with the Costa del Sol A-7 motorway and is very close to the AP-7 toll motorway accesses. In addition, it is located 20 minutes from Malaga International Airport and less than 30 minutes from Malaga historic center. Very close, there are also important tourist points such as Puerto Banús, the historic center of Marbella and Fuengirola. *** HURRY UP. VISIT IT AND CHOOSE YOURS BEFORE SOMEBODY GOES AHEAD !!!
Egenskaber
- 3 soveværelser
- 2 badeværelser
- Svømmepøl
- Single Bedrooms: 2, Double Bedrooms: 1
- Gym
- Heating: Yes, Air Conditioning: Yes
- Has Main Electric
- Useable Build Space: 92 Msq.
- Location: Coastal, Mountain, Urbanisation
- Near bus route
- Near Childrens Parks
- Near Commercial Center
- Near Golf / Golf Resort Property
- Beach: 50 Meters
- Terrace: 90 Msq.
- Gated
- garden
- Communal Pool
- Elevator/Lift
- Near Schools
- Views: Sea
Omkostningsfordeling
Standard betalingsform
Reservationsdepositum
3.000€
Resten af depositum til 10%
62.220€
Slutbetaling på 90% ved afslutning
586.980€
Ejendomsomkostninger
Ejendomspris
652.200€
Overførselsafgift 10%
65.220€
Notargebyrer (ca.)
600€
Matrikelgebyrer (ca.)
600€
Advokatgebyrer (ca.)
1.500€
* Overførselsafgift er baseret på salgsværdien eller matrikelværdien, der er den højeste.
** Ovenstående oplysninger vises kun som vejledning.
Realkreditlommeregner
Similar Properties
Spanske ejendomsnyheder og opdateringer fra Spain Property Portal.com
In Spain, two primary taxes are associated with property purchases: IVA (Value Added Tax) and ITP (Property Transfer Tax). IVA, typically applicable to new constructions, stands at 10% of the property's value. On the other hand, ITP, levied on resale properties, varies between regions but generally ranges from 6% to 10%.
Spain Property Portal is an online platform that has revolutionized the way people buy and sell real estate in Spain.
In Spain, mortgages, known as "hipotecas," are common, and the market has seen significant growth and evolution.























