Forespørg om denne ejendom
Ref: ERG4764C
Ejendom markedsført af España Dream Properties
Dit navn:
Email adresse:
Telefon nr:
Ved at markere dette felt videregiver vi din forespørgsel til op til fem andre ejendomsmæglere, der har lignende ejendomme som denne.
Forespørgsel Detaljer:
New Build Apartments in the Heart of Torrevieja Just 400 m from Playa del Cura
Prime Location in Central Torrevieja
This new residential building enjoys an unbeatable location in the center of Torrevieja, only 400 m from Playa del Cura. Surrounded by shops, supermarkets, restaurants and daily services, it offers everything you need within walking distance. The area also provides access to parks, leisure zones and green areas, creating a perfect balance between urban convenience and moments of relaxation.
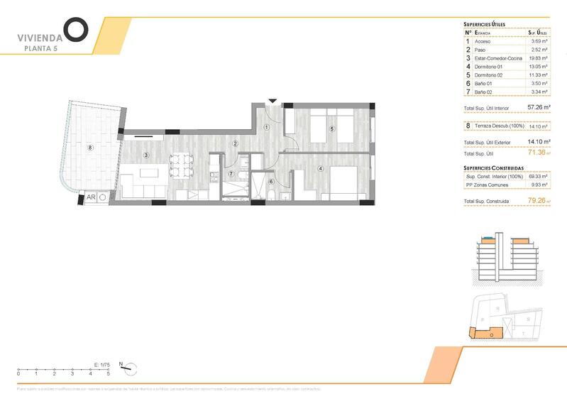
Modern Homes With 2 and 3 Bedrooms
The development offers a selection of 2 and 3 bedroom apartments, including penthouses, some of them with private solariums. Each home is designed with a contemporary style, featuring open plan layouts, large terraces and integrated American style kitchens. Bathrooms come fully equipped with furniture, shower screens and underfloor heating. The kitchens include appliances, and each apartment has preinstallation for ducted air conditioning. Optional underground parking and storage rooms are available.
Resort Style Facilities for Wellbeing
Residents can enjoy a range of exclusive amenities. The ground floor features a fully equipped gym, ideal for daily workouts. The rooftop solarium provides a true relaxation oasis with sunbeds, a Finnish sauna and a mini pool. Both the elevator and stairs connect directly to the rooftop for maximum convenience and accessibility.
Living in a Unique Natural and Coastal Environment
Torrevieja is known for its warm Mediterranean climate, with an average annual temperature of 20ºC, making it a perfect place to live year round. The city is famous for its natural salt lagoons and the protected Natural Park of La Mata and Torrevieja, located only 4 km from the development. Its pink and green lakes, scenic walking routes and rich biodiversity offer a healthy and inspiring lifestyle.
Distances to Key Points of Interest
Playa del Cura 0.4 km
Torrevieja Marina 1 km
La Mata Natural Park 4 km
Villamartin Golf 8 km
Alicante Airport 45 km
Murcia Airport 60 km
Experience the Mediterranean Lifestyle
Do not miss the opportunity to own a modern home in one of the Costa Blanca’s most desirable coastal cities. Contact us today to arrange a visit and secure your place in this exceptional new development.
Prime Location in Central Torrevieja
This new residential building enjoys an unbeatable location in the center of Torrevieja, only 400 m from Playa del Cura. Surrounded by shops, supermarkets, restaurants and daily services, it offers everything you need within walking distance. The area also provides access to parks, leisure zones and green areas, creating a perfect balance between urban convenience and moments of relaxation.
Modern Homes With 2 and 3 Bedrooms
The development offers a selection of 2 and 3 bedroom apartments, including penthouses, some of them with private solariums. Each home is designed with a contemporary style, featuring open plan layouts, large terraces and integrated American style kitchens. Bathrooms come fully equipped with furniture, shower screens and underfloor heating. The kitchens include appliances, and each apartment has preinstallation for ducted air conditioning. Optional underground parking and storage rooms are available.
Resort Style Facilities for Wellbeing
Residents can enjoy a range of exclusive amenities. The ground floor features a fully equipped gym, ideal for daily workouts. The rooftop solarium provides a true relaxation oasis with sunbeds, a Finnish sauna and a mini pool. Both the elevator and stairs connect directly to the rooftop for maximum convenience and accessibility.
Living in a Unique Natural and Coastal Environment
Torrevieja is known for its warm Mediterranean climate, with an average annual temperature of 20ºC, making it a perfect place to live year round. The city is famous for its natural salt lagoons and the protected Natural Park of La Mata and Torrevieja, located only 4 km from the development. Its pink and green lakes, scenic walking routes and rich biodiversity offer a healthy and inspiring lifestyle.
Distances to Key Points of Interest
Playa del Cura 0.4 km
Torrevieja Marina 1 km
La Mata Natural Park 4 km
Villamartin Golf 8 km
Alicante Airport 45 km
Murcia Airport 60 km
Experience the Mediterranean Lifestyle
Do not miss the opportunity to own a modern home in one of the Costa Blanca’s most desirable coastal cities. Contact us today to arrange a visit and secure your place in this exceptional new development.
Egenskaber
- 2 soveværelser
- 2 badeværelser
- Svømmepøl
- Near bus route
- Near Commercial Center
- Near Childrens Parks
- Near Schools
- First Line to the Sea
- Space
- Beach: 400 Meters
- Elevator/Lift
- Communal Pool
- Gated
- Terrace: 14 Msq.
- Double Bedrooms: 2
- Useable Build Space: 71 Msq.
- Location: Coastal
- Gym
- Under-Build / Basement
- Air Conditioning: Pre-Installed
Omkostningsfordeling
Standard betalingsform
Reservationsdepositum
3.000€
Resten af depositum til 10%
26.000€
Slutbetaling på 90% ved afslutning
261.000€
Ejendomsomkostninger
Ejendomspris
290.000€
Overførselsafgift 8%
23.200€
Notargebyrer (ca.)
600€
Matrikelgebyrer (ca.)
600€
Advokatgebyrer (ca.)
1.500€
* Overførselsafgift er baseret på salgsværdien eller matrikelværdien, der er den højeste.
** Ovenstående oplysninger vises kun som vejledning.
Realkreditlommeregner
Similar Properties
Spanske ejendomsnyheder og opdateringer fra Spain Property Portal.com
In Spain, two primary taxes are associated with property purchases: IVA (Value Added Tax) and ITP (Property Transfer Tax). IVA, typically applicable to new constructions, stands at 10% of the property's value. On the other hand, ITP, levied on resale properties, varies between regions but generally ranges from 6% to 10%.
Spain Property Portal is an online platform that has revolutionized the way people buy and sell real estate in Spain.
In Spain, mortgages, known as "hipotecas," are common, and the market has seen significant growth and evolution.














